home page > Annunci immobiliari in Italia > Abruzzo > Pescara > Spoltore > appartamenti in vendita > Scheda immobile

Appartamento in vendita a Spoltore

COMPILA IL MODULO SOTTOSTANTE PER RICEVERE MAGGIORI INFORMAZIONI







Invia la richiesta ad altre agenzie
Accetto il trattamento dei miei dati



Savini real estate

Strada colle di mezzo 3
65121 Pescara

0858893586    3296708468    Riferimenti: Mirco Savini

Spoltore
Prezzo: € 125.000
E
2
1
110
1
2



Descrizione:
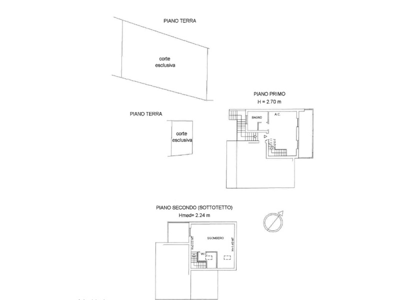
proponiamo appartamento duplex in spoltore centro via della madonnina, zona caratterizzata da una posizione tranquilla e riservata a sole poche centinaia di metri dal centro paese, offrendo cosଠla comodità di raggiungere facilmente tutti i servizi.tutti i servizi principali sono facilmente accessibili nelle immediate vicinanze, garantendo cosଠuna vita comoda e senza difficoltà. La classe energetica dell'appartamento à e, il che significa che si tratta di un'unità con un consumo energetico medio. Questo garantisce un risparmio di energia e riduce l'impatto ambientale.l'immobile à posto al piano primo, sviluppa una superficie di circa 110 mq. E si compone di: ingresso con soggiorno ampio a vista e cucina oltre terrazza e bagno. Da una scala si accede al piano superiore dove troviamo il reparto notte che si compone di due camere di cui una matrimoniale con balcone ed una cameretta con velux a soffitto oltre bagno finestrato. La proprietà in vendita ha inoltre un giardino privato con accesso non diretto dalla abitazione. L'appartamento include anche un posto auto condominiale ed un garage, che rappresentano un vantaggio significativo.l'appartamento à dotato di impianto di climatizzazione, predisposizione impianto allarme, infissi in legno a taglio termo-acustico. In sintesi, questo appartamento in vendita nel comune di spoltore rappresenta un'ottima opportunità per coloro che cercano una soluzione abitativa spaziosa, ben posizionata e a pochi passi da tutti i servizi. Il prezzo competitivo e la possibilità di personalizzare gli interni rendono questa proprietà ancora pià interessante.i dati e le immagini si intendono corretti ma non garantiti. La presente non costituisce in nessun caso documento contrattuale.




Caratteristiche immobile:
Codice inserzione: 1768591720
Rif. Annuncio: 1837978
Provincia: Pescara
Comune: Spoltore
Superficie (Mq) : 110 Mq.
Tipo immobile: Appartamento
Anno costruzione/ristrutturazione: 2007
Piano: 1
Camere: 2
Stato al rogito: Libero
Garage: Singolo
Posti auto scoperti: 2 posti auto
Bagni: 1

Costi:
Prezzo € 125.000


Efficienza energetica:
Classe energetica: E
Indice di prestazione energetica (EPgl): 3.51 kWh/mq annui