home page > Annunci immobiliari in Italia > Abruzzo > Teramo > Corropoli > Negozi uffici capannoni in vendita > Scheda immobile

Negozi uffici capannoni in vendita a Corropoli

COMPILA IL MODULO SOTTOSTANTE PER RICEVERE MAGGIORI INFORMAZIONI







Invia la richiesta ad altre agenzie
Accetto il trattamento dei miei dati



Quimmo agency

Via galileo galilei 6
48018 Faenza (RA)

0299944698

Corropoli
Prezzo: € 346.000
544



Descrizione:
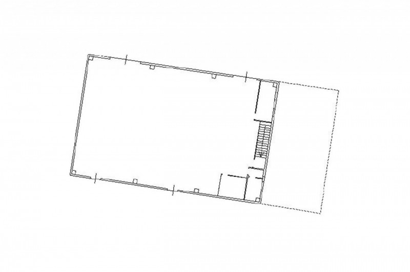
Vendesi capannone artigianale e area piantumata sito a corropoli (te), via piangallo 33/a. Il contesto è periferico, tranquillo e poco trafficato. La zona è dotata degli standard urbanistici primari, ben collegata al paese ove si trovano i principali servizi, al mare e alla autostrada a14 (casello val vibrata). Area collinare caratterizzata da abitazioni isolate, strutture agricole e terreni coltivati. Trattasi di capannone industriale realizzato nel 2005 su area privata non recintata. Struttura in cemento armato prefabbricato, copertura piana e tamponamenti in pannelli e mattoni facciavista. Opificio adibito alla lavorazione dell'uva. Laboratorio a doppia altezza al piano terra con wc e ufficio, corpo seminterrato adibito a bottaia e tettoia metallica esterna. Laboratorio e bottaia collegati da scala interna. Finiture e impianti standard, adatti ad attività artigianali. Climatizzazione ad aria. Capannone dotato di portoni carrabile. Cortile parzialmente pavimentato, carrabile ed illuminato. Area di sedime con stradello di accesso e porzione di verde piantumato. Condizioni buone.per maggiori dettagli consultare i documenti allegati.ape in corso di definizionesuperficie commerciale: 544 mqpiena proprietà di:capannone (cf): foglio 4 particella 215 subalterno 1 d/7area di sedime (ct): foglio 4 particella 215 ente urbano




Caratteristiche immobile:
Codice inserzione: 1757386703
Rif. Annuncio: 14843
Provincia: Teramo
Comune: Corropoli
Superficie (Mq) : 544 Mq.
Tipo immobile: Negozi uffici capannoni
Stato immobile: usato
Anno costruzione/ristrutturazione: 2005

Costi:
Prezzo € 346.000


Efficienza energetica: