home page > Annunci immobiliari in Italia > Abruzzo > Teramo > Mosciano Sant'Angelo > Case e ville indipendenti in vendita > Scheda immobile

Case e ville indipendenti in vendita a Mosciano Sant'Angelo

COMPILA IL MODULO SOTTOSTANTE PER RICEVERE MAGGIORI INFORMAZIONI







Invia la richiesta ad altre agenzie
Accetto il trattamento dei miei dati



Gregori immobiliare di gregori sara

Via roma, 123/a
64014 Martinsicuro (TE)

08611995237    3289381193

Mosciano Sant'Angelo
Prezzo: € 35.000
G
2
2
74



Descrizione:
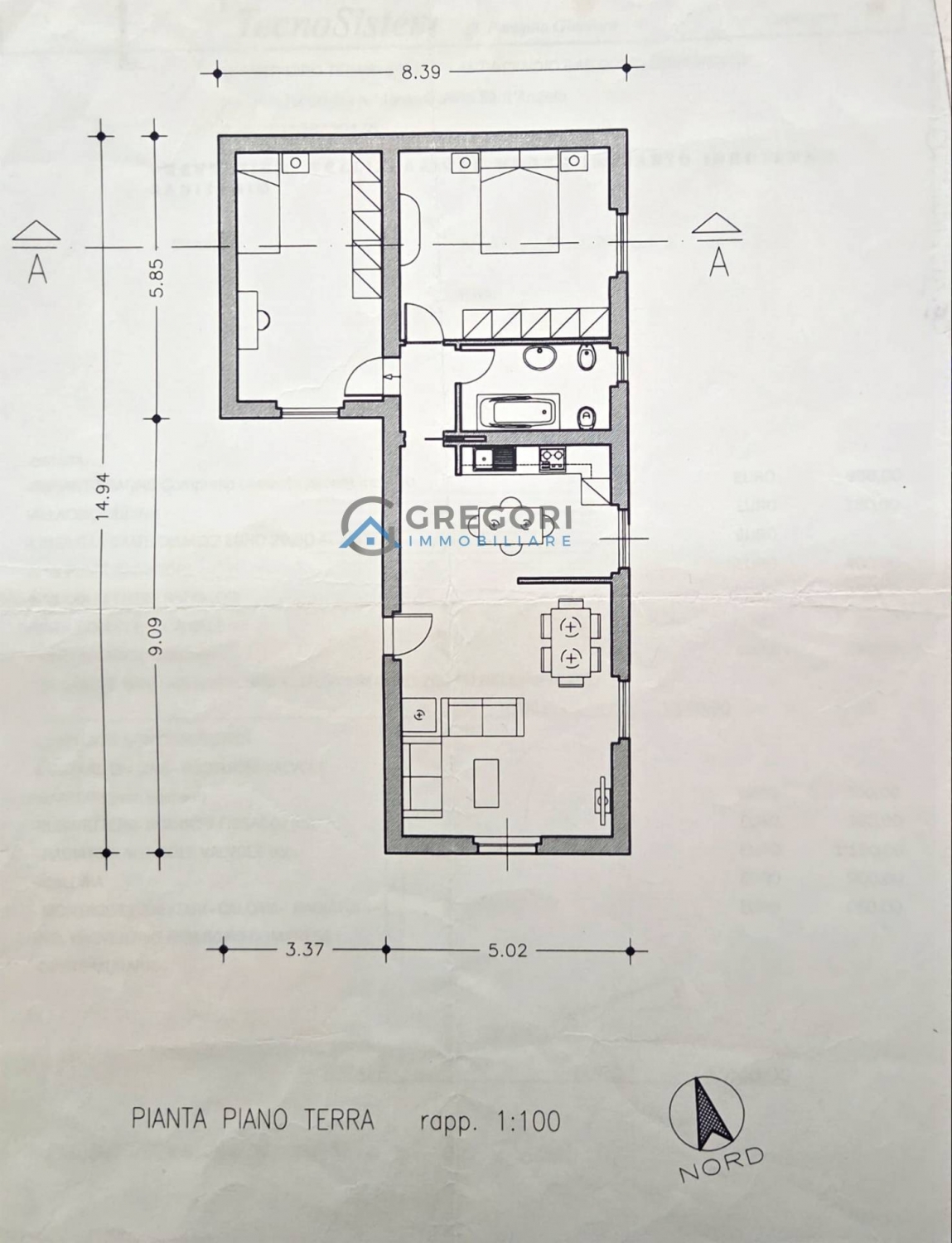
Questo rudere in vendita a mosciano sant'angelo rappresenta un'opportunità unica per chi desidera vivere in un'abitazione indipendente e di carattere.costruita nel lontano 1930, l'immobile va abbattuto e ricostruito, grazie anche alla sua posizione strategica permette di godere di una splendida vista sulla campagna circostante. E a pochi chilometri dall'uscita a14 di mosciano sant'angelo/ giulianova. L'immobile si trova al piano terra ed è libero al rogito, il che significa che l'acquirente potrà disporre dell'immobile immediatamente dopo la firma del contratto.con una superficie edificabile di 74 metri quadrati, la casa si sviluppa su un unico livello, su un lotto di terreno complessivo di 480 mq.ideale per chi desidera una soluzione di facile gestione e senza scale. La casa è composta da 3 locali, tra cui 2 camere da letto e 2 bagni, perfetta quindi per ospitare una famiglia o per coloro che amano avere spazio a disposizione.gli interni sono molto luminosi e ben distribuiti, con una cucina a vista che si apre sul soggiorno, creando un ambiente moderno e conviviale.inoltre, la presenza di un terreno annesso offre la possibilità di creare un giardino o un'area esterna dove trascorrere piacevoli momenti all'aria aperta. inoltre, il fatto che si sviluppi su un unico piano la rende adatta anche a chi ha difficoltà di mobilità. In sintesi, questa casa singola in vendita a mosciano sant'angelo è una vera e propria occasione per chi desidera vivere in un'abitazione indipendente, con uno stile unico e in una zona tranquilla ma ben servita.non perdere l'opportunità di diventare il proprietario di questo piccolo angolo di paradiso in abruzzo.questa descrizione ha valore puramente indicativo e non costituisce elemento contrattuale.




Caratteristiche immobile:
Codice inserzione: 1757478781
Rif. Annuncio: MOS035G
Provincia: Teramo
Comune: Mosciano Sant'Angelo
Superficie (Mq) : 74 Mq.
Tipo immobile: Case e ville indipendenti
Anno costruzione/ristrutturazione: 1920
Camere: 2
Stato al rogito: Libero
Bagni: 2

Costi:
Prezzo € 35.000


Efficienza energetica:
Classe energetica: G