Descrizione:
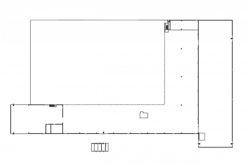
Vendesi porzione di capannone in zona industriale sito a melfi (pz), località san nicola, zona industriale snc. Il contesto è periferico, tranquillo e con traffico regolare. La zona è urbanizzata e ben collegata dalla vicina rete infrastrutturale ai centri di melfi e lavello, ove si trovano i principali servizi. Area caratterizzata da capannoni industriali a formare un villaggio produttivo con percorsi interni e parcheggi. L'unità è parte di un più grande complesso produttivo realizzato nel 2000, con struttura portante in cemento armato prefabbricato e acciaio. Trattasi di porzione di capannone piano terra con laboratorio, deposito prodotti finiti e uffici mobili. Piano primo con sala mensa. Vano scala con montacarichi. Locali internamente comunicanti con laboratori di altrui proprietà. Porzione di cortile privata, con aree verdi, magazzino esterno e vialetto carrabile collegato alla strada. Finiture e impianti standard, adatti ad attività produttive. Capannone con portone carrabile per accesso ai mezzi pesanti. Climatizzazione ad aria. Immobile affittato. Condizioni buone. Beni mobili esclusi dalla vendita.per maggiori dettagli consultare i documenti allegati.classe energetica gsuperficie commerciale: 6328 mqpiena proprietà di:capannone con corte (cf): foglio 5 particella 1484 d/7area di sedime (ct): foglio 5 particella 1484 ente urbano