home page > Annunci immobiliari in Italia > Basilicata > Potenza > Tito > Negozi uffici capannoni in vendita > Scheda immobile

Negozi uffici capannoni in vendita a Tito

COMPILA IL MODULO SOTTOSTANTE PER RICEVERE MAGGIORI INFORMAZIONI







Invia la richiesta ad altre agenzie
Accetto il trattamento dei miei dati



Immobili all'asta

Viale sabotino 4
20121 Milano

0280888267    Riferimenti: Ivano De Natale

Tito
Prezzo: € 47.475
F
1
120
1



Descrizione:
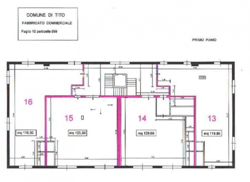
Ufficio all'asta in contrada serra, tito (pz)si propone il diritto di piena proprietà su immobile ad uso commerciale sito in contrada serra, nel comune di tito (pz).nello specifico si tratta di un ufficio al piano primo, composto da:- un unico vano- servizio igienico.l'unità risulta avere una superficie di circa 120mq.dati catastalil'unità immobiliare risulta identificata al catasto fabbricati come segue: foglio 10, particella 899, subalterno 13. In atti del catasto risulta attualmente censito come 'in corso di costruzione'.chi siamoimmobiliallasta.it aiuta le persone a comprare casa all'asta e migliorare la qualità della loro vita senza correre rischi, grazie ad una piattaforma specializzata in aste immobiliari sviluppata intorno alle vere esigenze di chi cerca casa all'asta e ad un team di 30 professionisti esperti dedicato, che ti guida passo passo in un acquisto sicuro e certificato da una tripla garanzia sull'immobile e sul servizio.a differenza delle agenzie troverai:+ varietà: gestiamo migliaia di immobili ogni mese+ tranquillità: tripla garanzia che ti tutela da ogni rischio sull'acquistoalcuni risultati oggettivi nell'ultimo anno e mezzo:- 8.600 immobili gestiti- +500 clienti portati all'asta- +200 case aggiudicate, per un valore totale di 15 milionicontattaci subito per parlare con uno dei nostri consulenti che ti aiuterà a trovare la tua casa all'asta senza correre rischi.




Caratteristiche immobile:
Codice inserzione: 1766549882
Rif. Annuncio: ST12348
Provincia: Potenza
Comune: Tito
Superficie (Mq) : 120 Mq.
Tipo immobile: Negozi uffici capannoni
Stato immobile: usato
Anno costruzione/ristrutturazione: 1960
Piano: 1
Bagni: 1

Costi:
Prezzo € 47.475


Efficienza energetica:
Classe energetica: F
Indice di prestazione energetica (EPgl): 175 kWh/mc annui