home page > Annunci immobiliari in Italia > Calabria > Catanzaro > Lamezia Terme > Terreni in vendita > Scheda immobile

Terreni in vendita a Lamezia Terme

COMPILA IL MODULO SOTTOSTANTE PER RICEVERE MAGGIORI INFORMAZIONI







Invia la richiesta ad altre agenzie
Accetto il trattamento dei miei dati



Abilio s.p.a.

Via galileo galilei 6
48018 Faenza (RA)

0289741561    0546046748    0546046747    Riferimenti: Abilio S.p.A.

Lamezia Terme
Prezzo: € 14.000
1370



Descrizione:
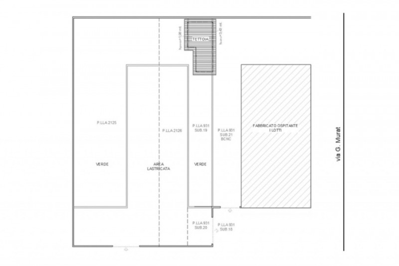
Quest'immobile viene venduto tramite asta online.quote di 1/2 di aree urbane e terreni siti in lamezia terme (cz), in via g. Murat nell'incrocio con via s. Foderaro, in una zona a prevalente destinazione residenziale e con attività commerciali.l'accesso ai terreni avviene tramite due cancelli carrabili in ferro entrambi su via s. Foderaro.la particella 2125 è parzialmente gravata da vincolo paesaggistico ai sensi dell'art. 142, comma 1, lettera c del d.lgs sul rispetto dei corsi d'acqua.presenza di una tettoia in ferro abusiva sulla particella 19.l'area urbana, particella 20, risulta pavimentata.per maggiori informazioni vedasi documentazione allegata.superficie catastale terreno particella 2125: 734 mqsuperficie catastale terreno particella 2126: 496 mqsuperficie catastale area urbana sub. 19: 109 mqsuperficie catastale area urbana sub. 20: 31 mqsuperficie totale catastale: 1370 mqproprietà di 1/2 di :(ct): foglio 32 - particella 2125(ct): foglio 32 - particella 2126(cf): foglio 32 -particella 931 - subalterno 19 - cat. F/1(cf): foglio 32 -particella 931- subalterno 20 - cat. F/1offerta minima: 14000 euro.quimmo.it: iniziativa tech del gruppo illimity specializzata nell'intermediazione digitale di beni immobili provenienti da tribunali, nuovi sviluppi immobiliari, financial institutions e libero mercato.da oltre 10 anni quimmo.it è il portale specializzato nella compravendita di immobili tramite asta giudiziaria. Il portale è infatti iscritto nel registro gestori della vendita telematica e nell'elenco dei siti web autorizzati allo svolgimento della pubblicità legale. Con quimmo puoi scegliere tra migliaia di immobili di ogni tipo e partecipare alle aste online per acquistare la soluzione più adatta alle tue esigenze.affidati all'esperienza decennale dei nostri esperti e richiedi l'assistenza gratuita per la presentazione e compilazione dell'offerta.contattaci subito.




Caratteristiche immobile:
Codice inserzione: 1760495822
Rif. Annuncio: 2537376
Provincia: Catanzaro
Comune: Lamezia Terme
Superficie (Mq) : 1370 Mq.
Tipo immobile: Terreni

Costi:
Prezzo € 14.000


Efficienza energetica: