 7270
						
						7270					
						
						Descrizione:
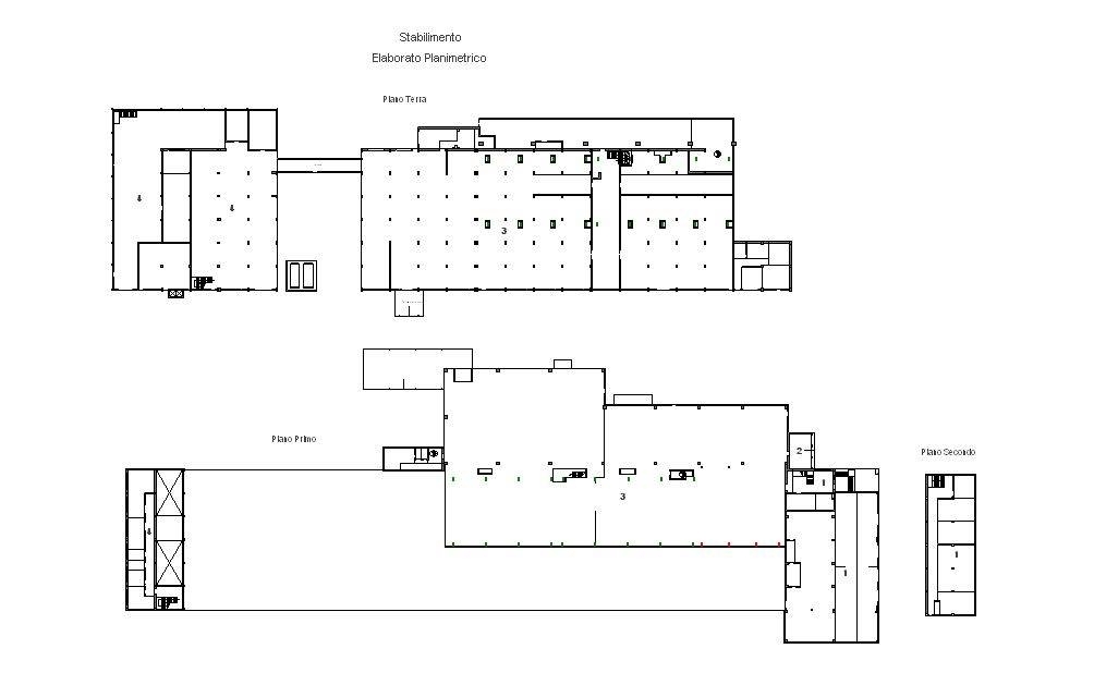
Vendesi compendio industriale con vari capannoni su due livelli con uffici, deposito, garage, tettoie e ampia corte esterna di circa 29.000 mq . Da ristrutturare. classe energetica: non indicata					
| Codice inserzione: | 1756955463 | 
| Rif. Annuncio: | UF45158 | 
| Provincia: | Cosenza | 
| Comune: | Carolei | 
| Zona: | Vadue | 
| Superficie (Mq) : | 7270 Mq. | 
| Tipo immobile: | Negozi uffici capannoni | 
| Stato immobile: | usato da riattare | 
| Prezzo | info in agenzia |