home page > Annunci immobiliari in Italia > Calabria > Cosenza > Castrolibero > Negozi uffici capannoni in vendita > Scheda immobile

Negozi uffici capannoni in vendita a Castrolibero

COMPILA IL MODULO SOTTOSTANTE PER RICEVERE MAGGIORI INFORMAZIONI







Invia la richiesta ad altre agenzie
Accetto il trattamento dei miei dati



Quimmo agency

Via galileo galilei 6
48018 Faenza (RA)

0299944698

Castrolibero
Prezzo: € 190.000
G
2
1060



Descrizione:
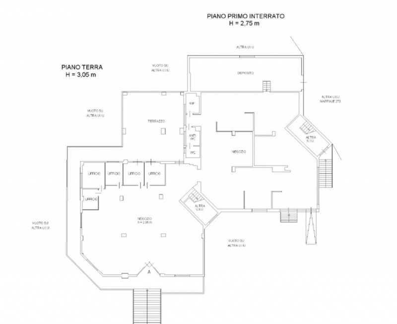
Proponiamo in vendita un'unità immobiliare a destinazione commerciale situata nel comune di castrolibero, in via motta, all'interno di un complesso a destinazione mista ubicato in posizione periferica ma facilmente accessibile, a circa 3,5 km dal centro cittadino.l'immobile si sviluppa su più livelli piano seminterrato, piano terra e piano primo ed è inserito in un fabbricato di maggiore consistenza composto da due piani fuori terra oltre al seminterrato. La distribuzione degli spazi risulta funzionale e versatile: al piano terra sono presenti ambienti destinati alla vendita e all'accoglienza della clientela, mentre i livelli superiori e inferiori ospitano ulteriori locali utilizzabili come uffici, spazi operativi e aree di servizio.la presenza di diversi ambienti ben organizzati consente una gestione efficiente delle attività, rendendo la soluzione particolarmente adatta per attività commerciali strutturate, studi professionali o sedi operative con necessità di spazi distinti tra front office e back office.l'unità beneficia inoltre di parti comuni del complesso e di affacci che garantiscono una buona fruibilità degli ambienti interni.soluzione ideale per chi è alla ricerca di un immobile commerciale di ampia metratura, con sviluppo su più livelli e buone potenzialità di personalizzazione, in un contesto facilmente raggiungibile e ben collegato.




Caratteristiche immobile:
Codice inserzione: 1776048342
Rif. Annuncio: 2639088
Provincia: Cosenza
Comune: Castrolibero
Superficie (Mq) : 1060 Mq.
Tipo immobile: Negozi uffici capannoni
Bagni: 2

Costi:
Prezzo € 190.000


Efficienza energetica:
Classe energetica: G