0289741561 0546046748 0546046747 Riferimenti: Abilio S.p.A.
 3
						
						3					 458
						
						458					
						
						Descrizione:
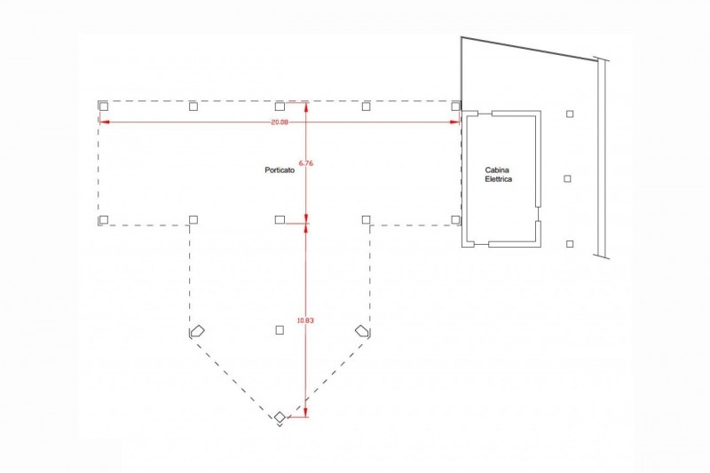
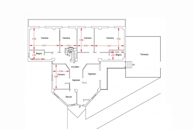
Quest'immobile viene venduto tramite asta online.situato in una zona ben collegata di dipignano (cs), in via irto, questa proprietà riguarda un fabbricato di tre piani fuori terra completamente da riqualificare ed un terreno di circa 1.200 mq. Al piano terra del fabbricato troviamo un ampio porticato, ideale per attività commerciali o di rappresentanza. Il primo piano, è suddiviso in stanze spaziose e luminose, utilizzate in precedenza come uffici. Il secondo piano mansardato, anch'esso adibito a uffici, offre un ambiente di lavoro tranquillo e riservato. Nonostante lo stato di manutenzione richieda interventi, la struttura rappresenta un'opportunità unica per chi desidera personalizzare gli spazi secondo le proprie esigenze. Le pratiche edilizie e catastali sono da completare.per maggiori dettagli consultare i documenti allegati.bene descritto in perizia come lotto unoofferta minima: 195140 euro.quimmo.it: iniziativa tech del gruppo illimity specializzata nell'intermediazione digitale di beni immobili provenienti da tribunali, nuovi sviluppi immobiliari, financial institutions e libero mercato.da oltre 10 anni quimmo.it è il portale specializzato nella compravendita di immobili tramite asta giudiziaria. Il portale è infatti iscritto nel registro gestori della vendita telematica e nell'elenco dei siti web autorizzati allo svolgimento della pubblicità legale. Con quimmo puoi scegliere tra migliaia di immobili di ogni tipo e partecipare alle aste online per acquistare la soluzione più adatta alle tue esigenze.affidati all'esperienza decennale dei nostri esperti e richiedi l'assistenza gratuita per la presentazione e compilazione dell'offerta.contattaci subito.					
| Codice inserzione: | 1761709766 | 
| Rif. Annuncio: | 2516008 | 
| Provincia: | Cosenza | 
| Comune: | Dipignano | 
| Superficie (Mq) : | 458 Mq. | 
| Tipo immobile: | Negozi uffici capannoni | 
| Stato immobile: | usato da riattare | 
| Bagni: | 3 | 
| Prezzo | € 195.140 |