home page > Annunci immobiliari in Italia > Calabria > Cosenza > Rende > Attività commerciali in affitto > Scheda immobile

Attività commerciali in affitto a Rende

COMPILA IL MODULO SOTTOSTANTE PER RICEVERE MAGGIORI INFORMAZIONI







Invia la richiesta ad altre agenzie
Accetto il trattamento dei miei dati



Rende

Via carlo bilotti 10
87036 Rende (CS)

0984.659552

Rende
Prezzo: € 800
2
80



Descrizione:
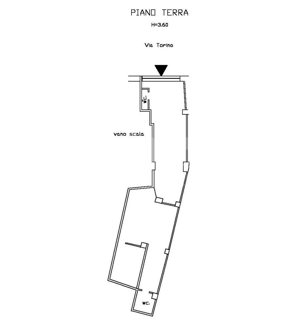
Proponiamo in fitto negozio ad uso commerciale situato nel cuore del comune di rende (cs) zona roges. Questo spazio di 80 mq offre due locali luminosi e ben distribuiti, ideali per ospitare attività commerciali di vario genere. I due bagni presenti garantiscono comfort e praticità per clienti e dipendenti. Inoltre, la presenza di un ripostiglio aggiuntivo permette di organizzare al meglio lo spazio di lavoro.la posizione strategica del negozio offre un'ottima visibilità e accessibilità. L'occupazione è immediatamente disponibile, offrendo la possibilità di avviare la propria attività senza indugi.non lasciarti sfuggire questa occasione per dare vita al tuo progetto imprenditoriale in un contesto dinamico e ben servito. Contattami per ulteriori informazioni e per organizzare una visita a questo spazio commerciale che potrebbe essere la sede perfetta per il successo della tua attività.gabetti franchising agency. Via carlo bilotti rende. Tel cell email




Caratteristiche immobile:
Codice inserzione: 1761262752
Rif. Annuncio: Cod. rif 3269530ACG
Provincia: Cosenza
Comune: Rende
Zona: Roges  
Superficie (Mq) : 80 Mq.
Tipo immobile: Attività commerciali
Bagni: 2

Costi:
Prezzo € 800


Efficienza energetica: