home page > Annunci immobiliari in Italia > Calabria > Cosenza > Zumpano > Negozi uffici capannoni in vendita > Scheda immobile

Negozi uffici capannoni in vendita a Zumpano

COMPILA IL MODULO SOTTOSTANTE PER RICEVERE MAGGIORI INFORMAZIONI







Invia la richiesta ad altre agenzie
Accetto il trattamento dei miei dati



Quimmo agency

Via galileo galilei 6
48018 Faenza (RA)

0299944698

Zumpano
Prezzo: € 370.000
D
783



Descrizione:
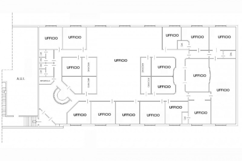
Ufficio, sito a zumpano (cs), via beato francesco marino.l'immobile è ubicato nella frazione malavicina a circa 2 chilometri dal centro del comune di appartenenza, situato in una zona prettamente commerciale.l'unità fa parte di un edificio a tre livelli fuori terra a destinazione commerciale e direzionale.trattasi di ufficio di ampia metratura, posto al piano primo, con accesso da vano scale comune.internamente composto da: ingresso con reception, 16 locali principali, un ampio open-space, 6 locali ad uso archivio-ripostiglio e 7 servizi igienici.classe energetica 'd'




Caratteristiche immobile:
Codice inserzione: 1776221230
Rif. Annuncio: 20828
Provincia: Cosenza
Comune: Zumpano
Superficie (Mq) : 783 Mq.
Tipo immobile: Negozi uffici capannoni
Stato immobile: usato

Costi:
Prezzo € 370.000


Efficienza energetica:
Classe energetica: D