home page > Annunci immobiliari in Italia > Campania > Avellino > Aiello del Sabato > Terreni in vendita > Scheda immobile

Terreni in vendita a Aiello del Sabato

COMPILA IL MODULO SOTTOSTANTE PER RICEVERE MAGGIORI INFORMAZIONI







Invia la richiesta ad altre agenzie
Accetto il trattamento dei miei dati



Elite immobiliare di c. Moschella

Via santissima trinita' 68
83100 Avellino

0825679485    0825679485    3205322450

Aiello del Sabato
Prezzo: € 420.000
G
14000



Descrizione:
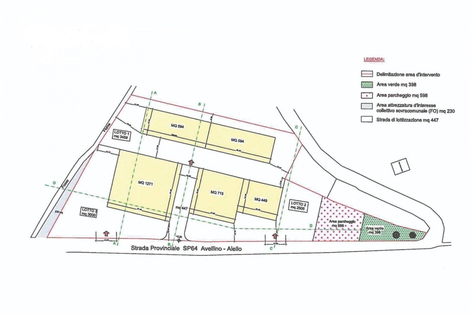
Vendita area industriale edificabile zona d1 | aiello del sabato (av)proponiamo in vendita area industriale di circa 14.000 mq, con destinazione produttiva d1, situata nel comune di aiello del sabato (avellino), lungo la strada provinciale di collegamento aielloavellino.la proprietà rappresenta una soluzione immediatamente sfruttabile per lo sviluppo industriale, grazie a caratteristiche fisiche e urbanistiche già definite, ideali per aziende e investitori che ricercano un'area pronta alla realizzazione di strutture produttive moderne.caratteristiche del lottosuperficie complessiva: circa 14.000 mqarea completamente pianeggianteampio fronte strada con accesso direttoottima manovrabilità per mezzi industrialicontesto produttivo in espansionepotenzialità edificatoriail terreno consente la realizzazione di un capannone industriale fino a circa 7.000 mq, con altezza fino a 12 metri, soluzione ideale per:attività produttive e manifatturierelogistica e distribuzionemagazzini, depositi e centri operativisedi aziendali con uffici integratiil layout può essere progettato come un unico corpo di fabbrica oppure suddiviso in più unità funzionali, in base alle esigenze operative o di investimento.localizzazione strategical'area gode di una posizione particolarmente favorevole rispetto alle principali infrastrutture:collegamento diretto con avellinorapido accesso alla ss7 bisprossimità al raccordo avellinosalernofacile collegamento con le principali arterie autostradalinapoli, salerno, porti e aeroporto raggiungibili in meno di un'orauna collocazione che garantisce efficienza logistica e facilità di accesso.destinazioni d'usola classificazione in zona d1 consente un ampio ventaglio di utilizzi, tra cui:insediamenti produttivi e artigianalilogistica e stoccaggioattività direzionali e ufficicommercio, showroom e servizi connessiconclusioneun'area industriale di dimensioni significative, ben posizionata e con elevato potenziale di sviluppo, adatta a imprese che desiderano realizzare una nuova sede operativa o a investitori interessati a un progetto produttivo in un contesto infrastrutturato. documentazione disponibile su richiesta informazioni e visite previo appuntamento claudio moschella classe energetica: g




Caratteristiche immobile:
Codice inserzione: 1766378197
Rif. Annuncio: 9036TI35039
Provincia: Avellino
Comune: Aiello del Sabato
Superficie (Mq) : 14000 Mq.
Tipo immobile: Terreni

Costi:
Prezzo € 420.000


Efficienza energetica:
Classe energetica: G