home page > Annunci immobiliari in Italia > Campania > Caserta > Alvignano > Negozi uffici capannoni in vendita > Scheda immobile

Negozi uffici capannoni in vendita a Alvignano

COMPILA IL MODULO SOTTOSTANTE PER RICEVERE MAGGIORI INFORMAZIONI







Invia la richiesta ad altre agenzie
Accetto il trattamento dei miei dati



Quimmo agency

Via galileo galilei 6
48018 Faenza (RA)

0299944698

Alvignano
Prezzo: € 190.000
1
598



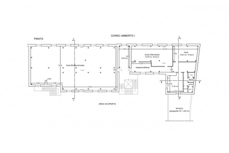
Descrizione:
Nel centro storico di alvignano proponiamo un ufficio al terzo piano di un fabbricato di complessivi tre piani fuori terra ubicato su corso umberto i. Sviluppa per una superficie complessiva pari a 508 mq ed è diviso in due aree autonome aventi ciascuna un proprio ingresso, e che sono distribuite lungo i latinord-ovest (183 mq) e sud-est (289 mq) e tra le quali è presente un'area comune che funge da disimpegno e da collegamento con il blocco connettivo verticale, composto da scala ed ascensore ubicati sul lato nord-est del fabbricato.corso umberto i è una delle principali vie della città che garantiscono ottima visibilità a qualsiasi attività uno voglia insediare.superficie lorda circa: 508 mq.




Caratteristiche immobile:
Codice inserzione: 1757386831
Rif. Annuncio: 24760
Provincia: Caserta
Comune: Alvignano
Superficie (Mq) : 598 Mq.
Tipo immobile: Negozi uffici capannoni
Stato immobile: usato
Bagni: 1

Costi:
Prezzo € 190.000


Efficienza energetica: