Descrizione:
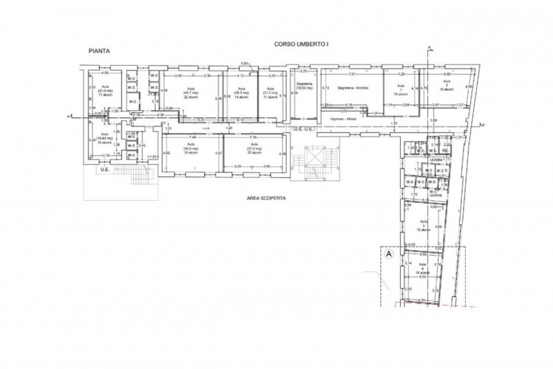
L'immobile oggetto di vendita si trova al secondo piano su quattro e misura complessivamente 665 mq.ottimo stato manutentivo.lo stabile si compone di due sezioni intervallate dal vano scale e da una stanza, attualmente adibita a segreteria.una delle due sezioni, al momento è occupata da un istituto scolastico ed è ripartita in sei stanze adibite ad aule, due stanze destinate ad ospitare i servizi igienici, otto in totale, e da un'ampia terrazza.la seconda sezione, attualmente libera, è, invece, composta da cinque stanze adibite ad aule e può contare su dieci bagni. Completano la proprietà due lunghi corridoi.