home page > Annunci immobiliari in Italia > Campania > Caserta > Alvignano > Negozi uffici capannoni in vendita > Scheda immobile

Negozi uffici capannoni in vendita a Alvignano

COMPILA IL MODULO SOTTOSTANTE PER RICEVERE MAGGIORI INFORMAZIONI







Invia la richiesta ad altre agenzie
Accetto il trattamento dei miei dati



Quimmo agency

Via galileo galilei 6
48018 Faenza (RA)

0299944698

Alvignano
Prezzo: € 110.000
154



Descrizione:
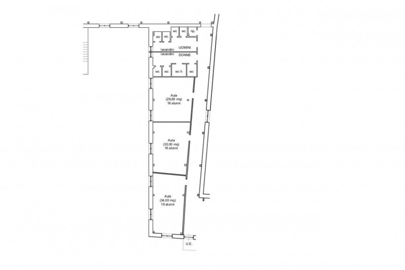
L'unità immobiliare è ubicata al primo piano di un fabbricato di complessivi tre piani fuori terra considerando il lato prospiciente corso umberto i. Essa si sviluppa per una superficie complessiva pari a 154 mq. Il blocco di collegamento verticale, composto da scala ed ascensore, è ubicato sul lato nord-est del fabbricato. L'altezza interna è di 3,50 m. Il lato sud è collegato fisicamente all'unità immobiliare confinate di proprietà di terzi.superficie lorda: 154 mq




Caratteristiche immobile:
Codice inserzione: 1774238057
Rif. Annuncio: 24761
Provincia: Caserta
Comune: Alvignano
Superficie (Mq) : 154 Mq.
Tipo immobile: Negozi uffici capannoni
Stato immobile: usato

Costi:
Prezzo € 110.000


Efficienza energetica: