home page > Annunci immobiliari in Italia > Campania > Caserta > Maddaloni > appartamenti in vendita > Scheda immobile

Appartamento in vendita a Maddaloni

COMPILA IL MODULO SOTTOSTANTE PER RICEVERE MAGGIORI INFORMAZIONI







Invia la richiesta ad altre agenzie
Accetto il trattamento dei miei dati



Gruppo eccocasa s.r.l.

Via caudina n. 10
31020 Villorba (TV)

0823436914

Maddaloni
Prezzo: € 150.000
3
2
100



Descrizione:
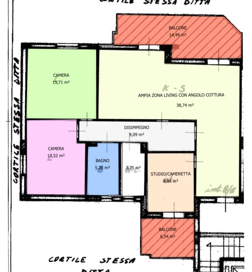
Maddaloni - via brecciame appartamento in parco con box auto e cantinola in zona residenziale e precisamente in via brecciame, proponiamo in esclusiva la vendita di un appartamento locato in parco con ampi spazi verdi. Ubicato al piano secondo servito da ascensore, l'appartamento composto da salone a vista con cucina , camera matrimoniale, due camerette, due bagni, box auto, posto auto e cantinola. Come gi anticipato, essendo locato , l'immobile produce un'ottima rendita annuale divenendo cos una proficua opportunit d'investimento per chi lo acquista cosa aspetti? non lasciarti sfuggire quest'occasione per info e/o appuntamenti contattaci, allo seguici per restare sempre aggiornato su fb: eccocasa maddaloni instagram: eccocasa_ maddaloni - sc9552150




Caratteristiche immobile:
Codice inserzione: 1767234575
Rif. Annuncio: 1767234575
Provincia: Caserta
Comune: Maddaloni
Superficie (Mq) : 100 Mq.
Tipo immobile: Appartamento
Anno costruzione/ristrutturazione: 1987
Camere: 3
Garage: Singolo
Bagni: 2

Costi:
Prezzo € 150.000


Efficienza energetica:
Riscaldamento: autonomo