home page > Annunci immobiliari in Italia > Campania > Caserta > Maddaloni > Negozi uffici capannoni in affitto > Scheda immobile

Negozi uffici capannoni in affitto a Maddaloni

COMPILA IL MODULO SOTTOSTANTE PER RICEVERE MAGGIORI INFORMAZIONI







Invia la richiesta ad altre agenzie
Accetto il trattamento dei miei dati



Gruppo eccocasa s.r.l.

Via caudina n. 10
31020 Villorba (TV)

0823436914

Maddaloni
Prezzo: € 500
1
57
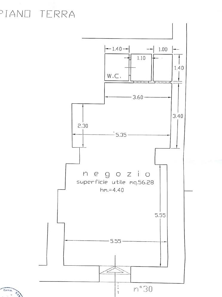
Piano terra



Descrizione:
Maddaloni - via napoli in pieno centro cittadino, e precisamente in via napoli, in prossimit di negozi, uffici postali ed ottimamente collegato con le maggiori arterie urbane ed extra urbane, proponiamo in esclusiva la locazione di locale commerciale di circa 60 mq con annessa bagno ed antibagno. Ubicato al piano terra con accesso da via napoli, l'immobile composto da un unico ambiente servito da bagno ,antibagno e spogliatoio. Fornito di controsoffitto con faretti grandi ad incasso ed impianto di filodiffusione contattaci allo o al anche via whatsapp per ricevere ulteriori informazioni o fissare un appuntamento di visita della propriet. Visita il sito per trovare tante altre soluzioni in vendita o in affitto adatte alle tue necessit. Seguici anche su facebook ed instagram per essere sempre aggiornato sulle ultime novit del mercato immobiliare. Se ti fa piacere, lascia una recensione sui nostri servizi - sc9552335




Caratteristiche immobile:
Codice inserzione: 1767234592
Rif. Annuncio: 1767234592
Provincia: Caserta
Comune: Maddaloni
Superficie (Mq) : 57 Mq.
Tipo immobile: Negozi uffici capannoni
Piano: Piano terra
Bagni: 1

Costi:
Prezzo € 500


Efficienza energetica: