home page > Annunci immobiliari in Italia > Campania > Caserta > Sessa Aurunca > appartamenti in vendita > Scheda immobile

Appartamento in vendita a Sessa Aurunca

COMPILA IL MODULO SOTTOSTANTE PER RICEVERE MAGGIORI INFORMAZIONI







Invia la richiesta ad altre agenzie
Accetto il trattamento dei miei dati



Immobili all'asta

Viale sabotino 4
20121 Milano

0280888267    Riferimenti: Ivano De Natale

Sessa Aurunca
Prezzo: € 17.344
F
2
1
75



Descrizione:
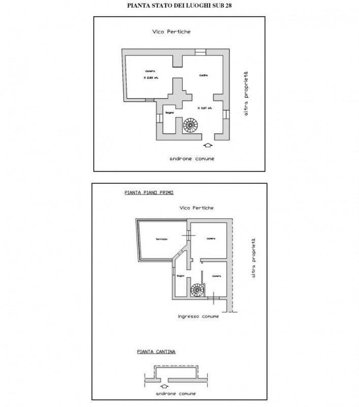
Appartamento all'asta a sessa aurunca (ce)una bellissima proprietà è in vendita all'asta, composta da due unità immobiliari unite e collegate da una scala a chiocciola. Al piano terra si trova un salone con angolo cottura, un bagno e un soggiorno, mentre al piano primo c'è un disimpegno, due camere da letto, un bagno e un terrazzo a livello. Completa la proprietà una cantinola al piano terra. L'offerta minima per partecipare all'asta è di 17344.12 €. Per ulteriori dettagli, contatta immobiliallasta.it, esperti in aste e leader in italia.chi siamoimmobiliallasta.it aiuta le persone a comprare casa all'asta e migliorare la qualità della loro vita senza correre rischi, grazie ad una piattaforma specializzata in aste immobiliari sviluppata intorno alle vere esigenze di chi cerca casa all'asta e ad un team di 30 professionisti esperti dedicato, che ti guida passo passo in un acquisto sicuro e certificato da una tripla garanzia sull'immobile e sul servizio.a differenza delle agenzie troverai:+ varietà: gestiamo migliaia di immobili ogni mese+ tranquillità: controlli certificati che ti tutelano nell'acquistoalcuni risultati oggettivi nell'ultimo anno e mezzo:- 8.600 immobili gestiti- +500 clienti portati all'asta- +200 case aggiudicate, per un valore totale di 15 milionicontattaci subito per parlare con uno dei nostri consulenti che ti aiuterà a trovare la tua casa all'asta senza correre rischi.




Caratteristiche immobile:
Codice inserzione: 1757301006
Rif. Annuncio: EX04348302
Provincia: Caserta
Comune: Sessa Aurunca
Superficie (Mq) : 75 Mq.
Tipo immobile: Appartamento
Stato immobile: usato
Anno costruzione/ristrutturazione: 1960
Camere: 2
Bagni: 1

Costi:
Prezzo € 17.344


Efficienza energetica:
Classe energetica: F
Indice di prestazione energetica (EPgl): 175 kWh/mq annui