home page > Annunci immobiliari in Italia > Campania > Caserta > Teverola > appartamenti in vendita > Scheda immobile

Appartamento in vendita a Teverola

COMPILA IL MODULO SOTTOSTANTE PER RICEVERE MAGGIORI INFORMAZIONI







Invia la richiesta ad altre agenzie
Accetto il trattamento dei miei dati



Immobili all'asta

Viale sabotino 4
20121 Milano

0280888267    Riferimenti: Ivano De Natale

Teverola
Prezzo: € 36.000
F
1
1
72
Ultimo piano
1



Descrizione:
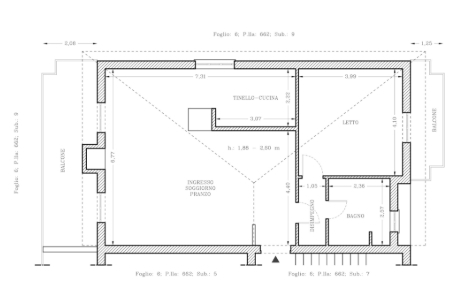
Appartamento all'asta in via f. Bandiera, teverola (ce)si propone il diritto di piena proprietà su immobile ad uso residenziale sito in via fratelli bandiera - i traversa n. 8, nel comune di teverola (ce).nello specifico si tratta di un appartamento al piano sottotetto, composto da:- ingresso-soggiorno-pranzo- cucinino/angolo cottura- disimpegno- camera da letto- bagno.accessori- posto auto.l'unità abitativa risulta avere una superficie di circa 72mq.dati catastalil'unità immobiliare risulta identificata al catasto fabbricati come segue:foglio 6, p.lla 662, sub. 6 (sottotetto) e sub.10 (posto auto scoperto). chi siamoimmobiliallasta.it aiuta le persone a comprare casa all'asta e migliorare la qualità della loro vita senza correre rischi, grazie ad una piattaforma specializzata in aste immobiliari sviluppata intorno alle vere esigenze di chi cerca casa all'asta e ad un team di 30 professionisti esperti dedicato, che ti guida passo passo in un acquisto sicuro e certificato da una tripla garanzia sull'immobile e sul servizio. a differenza delle agenzie troverai: + varietà: gestiamo migliaia di immobili ogni mese+ tranquillità: tripla garanzia che ti tutela da ogni rischio sull'acquistoalcuni risultati oggettivi nell'ultimo anno e mezzo:- 8.600 immobili gestiti- +500 clienti portati all'asta - +200 case aggiudicate, per un valore totale di 15 milionicontattaci subito per parlare con uno dei nostri consulenti che ti aiuterà a trovare la tua casa all'asta senza correre rischi.




Caratteristiche immobile:
Codice inserzione: 1770867806
Rif. Annuncio: ST12217
Provincia: Caserta
Comune: Teverola
Superficie (Mq) : 72 Mq.
Tipo immobile: Appartamento
Stato immobile: usato
Anno costruzione/ristrutturazione: 1960
Piano: Ultimo piano
Camere: 1
Posti auto scoperti: 1 posto auto
Bagni: 1

Costi:
Prezzo € 36.000


Efficienza energetica:
Classe energetica: F
Indice di prestazione energetica (EPgl): 175 kWh/mq annui