home page > Annunci immobiliari in Italia > Campania > Napoli > Cercola > Negozi uffici capannoni in affitto > Scheda immobile

Negozi uffici capannoni in affitto a Cercola

COMPILA IL MODULO SOTTOSTANTE PER RICEVERE MAGGIORI INFORMAZIONI







Invia la richiesta ad altre agenzie
Accetto il trattamento dei miei dati



Arco immobiliare luxury real estate

Via dei mille, 16
80121 Napoli

0815305357

Cercola
Prezzo: € 750
G
4
300



Descrizione:
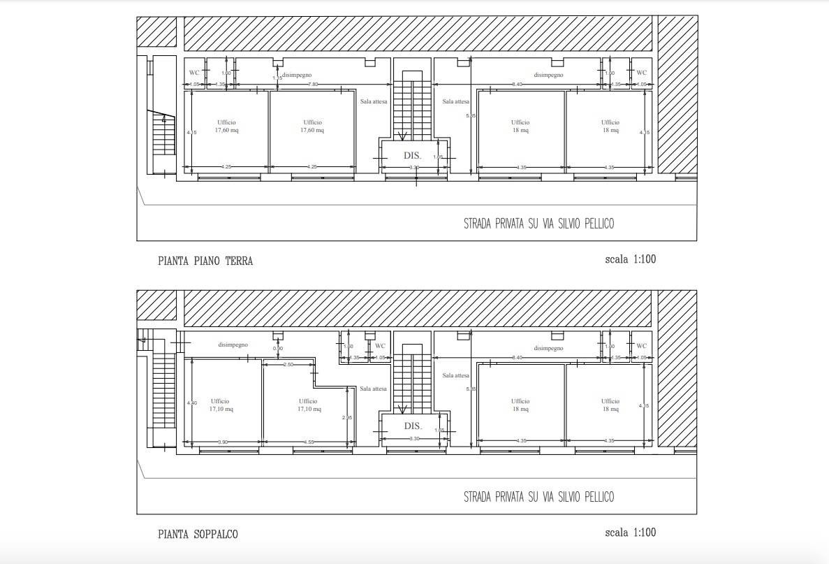
Ref.donatoarco immobiliare luxury propone in affitto a cercola, nei pressi dell'uscita della superstrada, una struttura ad uso ufficio di circa 300 mq complessivi, distribuiti su due livelli di circa 150 mq ciascuno.la soluzione è composta da 8 uffici, ognuno di circa 18 mq, di cui 4 situati al piano terra e 4 al piano superiore, ideali per professionisti, studi associati o piccole aziende.la struttura dispone inoltre di una comoda sala d'attesa e di parcheggio dedicato, elemento che garantisce praticità e facilità di accesso sia per il personale che per la clientela.canone mensile per singolo ufficio: eu.750. Classe energetica: g




Caratteristiche immobile:
Codice inserzione: 1761713528
Rif. Annuncio: DONATO3822
Provincia: Napoli
Comune: Cercola
Superficie (Mq) : 300 Mq.
Tipo immobile: Negozi uffici capannoni
Bagni: 4

Costi:
Prezzo € 750


Efficienza energetica:
Classe energetica: G