home page > Annunci immobiliari in Italia > Campania > Napoli > Cercola > Negozi uffici capannoni in affitto > Scheda immobile

Negozi uffici capannoni in affitto a Cercola

COMPILA IL MODULO SOTTOSTANTE PER RICEVERE MAGGIORI INFORMAZIONI







Invia la richiesta ad altre agenzie
Accetto il trattamento dei miei dati



Andromeda s.r.l. Unipersonale

Via lipari, 6 - casoria (na)
80026 Casoria (NA)

081.5775167    3357751666    Riferimenti: katia

Cercola
Prezzo: € 1.900
A1
2
150
1



Descrizione:
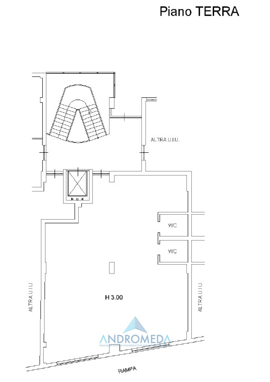
- cercola nei pressi di via europa proponiamo in affitto ufficio di circa m 150, situato al piano terra di un complesso moderno e ben organizzato. l'immobile verrà consegnato completamente rifinito, con pavimentazioni, infissi, servizi igienici e predisposizione per l'impianto di climatizzazione, risultando subito idoneo per attività direzionali e professionali. completano la proprietà n. 2 posti auto riservati all'interno del complesso, che è servito da impianto di videosorveglianza, a garanzia di sicurezza e comodità. la posizione è altamente strategica, grazie alla prossimità alle principali uscite dell'asse mediano, che assicura collegamenti rapidi e agevoli con le principali direttrici urbane ed extraurbane. possibilità di ampliamento di ulteriori m 180. canone di locazione: € 1.900/mese spese condominiali: € 150/mese quanto vale il tuo immobile? rivolgiti per una valutazione gratuita alla nostra agenzia andromeda immobiliare s.r.l. Metteremo a tua disposizione un team di professionisti esperti, con esperienza pluriennale in intermediazione ed affari immobiliari che possiedono requisiti ed adeguate conoscenze che garantiscono un prezioso aiuto sia per gli acquirenti che per i venditori in tutte le fasi di una compravendita immobiliare. Per qualsiasi informazione e/o per fissare un appuntamento senza impegno, contattare il nostro ufficio andromeda srl via lipari n° 6 casoria - al numero di telefono oppure all'indirizzo mail: presso la nostra agenzia, è possibile su richiesta, grazie ai nostri professionisti ricevere una consulenza gratuita ed accedere ad un'ampia gamma di prodotti creditizi e assicurativi come: mutui prima, seconda casa e ristrutturazione; sostituzione o surroga del mutuo; cessioni del quinto dello stipendio o pensione; consolidamento debiti; prodotti assicurativi per la famiglia, ramo danni e vita. Seguici anche su facebook o su instagram, clicca 'mi piace' sulla pagina andromeda_immobiliare




Caratteristiche immobile:
Codice inserzione: 1766391732
Rif. Annuncio: 2068
Provincia: Napoli
Comune: Cercola
Superficie (Mq) : 150 Mq.
Tipo immobile: Negozi uffici capannoni
Posti auto scoperti: 1 posto auto
Bagni: 2

Costi:
Prezzo € 1.900


Efficienza energetica:
Classe energetica: A1
Indice di prestazione energetica (EPgl): 100 kWh/mc annui