home page > Annunci immobiliari in Italia > Campania > Napoli > Grumo Nevano > Negozi uffici capannoni in affitto > Scheda immobile

Negozi uffici capannoni in affitto a Grumo Nevano

COMPILA IL MODULO SOTTOSTANTE PER RICEVERE MAGGIORI INFORMAZIONI







Invia la richiesta ad altre agenzie
Accetto il trattamento dei miei dati



Andromeda s.r.l. Unipersonale

Via lipari, 6 - casoria (na)
80026 Casoria (NA)

081.5775167    3357751666    Riferimenti: katia

Grumo Nevano
Prezzo: € 1.550
B
1
130



Descrizione:
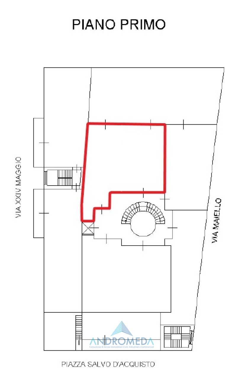
Grumo nevano viale ventiquattro maggio - proponiamo in affitto un locale commerciale di circa m 130, con altezza di mt 3, situato al primo piano servito da ascensore di una galleria commerciale.l'immobile, attualmente allo stato di grezzo, verrà consegnato completo di infissi interni ed esterni, pavimentazione, controsoffitto, impianto elettrico base ed impianto antincendio base.la galleria dispone inoltre di un parcheggio al piano seminterrato, comodamente servito da ascensore, un vantaggio che facilita l'accesso alla clientela e aumenta l'attrattività dell'intero complesso.il locale vanta un'ottima visibilità, trovandosi su una strada ad intenso passaggio veicolare e pedonale, nelle immediate vicinanze di numerose altre attività commerciali.possibilità di ampliamento di ulteriori m 135.richiesta: € 1.550/mesespese condominiali mensili pari a € 345,00quanto vale il tuo immobile? rivolgiti per una valutazione gratuita alla nostra agenzia andromeda immobiliare s.r.l. Metteremo a tua disposizione un team di professionisti esperti, con esperienza pluriennale in intermediazione ed affari immobiliari che possiedono requisiti ed adeguate conoscenze che garantiscono un prezioso aiuto sia per gli acquirenti che per i venditori in tutte le fasi di una compravendita immobiliare. Per qualsiasi informazione e/o per fissare un appuntamento senza impegno, contattare il nostro ufficio andromeda srl via lipari n° 6 casoria - al numero di telefono oppure all'indirizzo mail: presso la nostra agenzia, è possibile su richiesta, grazie ai nostri professionisti ricevere una consulenza gratuita ed accedere ad un'ampia gamma di prodotti creditizi e assicurativi come: mutui prima, seconda casa e ristrutturazione; sostituzione o surroga del mutuo; cessioni del quinto dello stipendio o pensione; consolidamento debiti; prodotti assicurativi per la famiglia, ramo danni e vita. Seguici anche su facebook o su instagram, clicca 'mi piace' sulla pagina andromeda_immobiliare




Caratteristiche immobile:
Codice inserzione: 1766391744
Rif. Annuncio: 2080
Provincia: Napoli
Comune: Grumo Nevano
Superficie (Mq) : 130 Mq.
Tipo immobile: Negozi uffici capannoni
Bagni: 1

Costi:
Prezzo € 1.550


Efficienza energetica:
Classe energetica: B
Indice di prestazione energetica (EPgl): 100 kWh/mc annui