home page > Annunci immobiliari in Italia > Campania > Napoli > Marigliano > Negozi uffici capannoni in affitto > Scheda immobile

Negozi uffici capannoni in affitto a Marigliano

COMPILA IL MODULO SOTTOSTANTE PER RICEVERE MAGGIORI INFORMAZIONI







Invia la richiesta ad altre agenzie
Accetto il trattamento dei miei dati



Living di nappi giovanni

Via fonseca n° 65
80035 Nola (NA)

0815124994    0815124994    3923433873    Riferimenti: Giovanni Nappi

Marigliano
Prezzo: € 700
E
1
80
2



Descrizione:
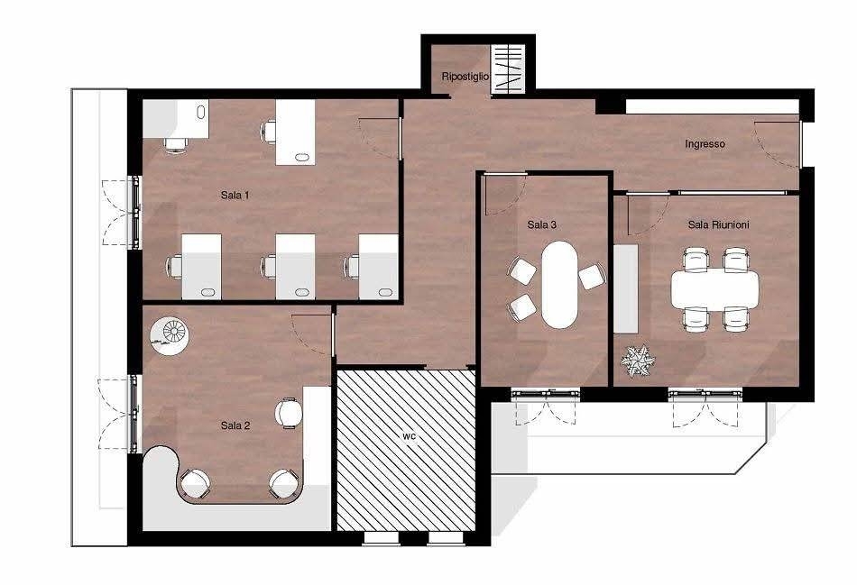
Posizione : marigliano, in centro a ridosso della principale strada della città;tipologia : appartamento uso studio, composto da quattro camere e bagno, ideale per liberi professionisti, situato al secondo piano di un palazzo signorile; note :-posto auto custodito-l'immobile è provvisto di impianto di aria condizionata di ultima generazione-porte in massello , portoncino d'ingresso blindato -pavimentazione in parquet classe energetica: e




Caratteristiche immobile:
Codice inserzione: 1771381915
Rif. Annuncio: 1024RA3sge
Provincia: Napoli
Comune: Marigliano
Superficie (Mq) : 80 Mq.
Tipo immobile: Negozi uffici capannoni
Stato immobile: usato
Piano: 2
Bagni: 1

Costi:
Prezzo € 700


Efficienza energetica:
Classe energetica: E
Riscaldamento: autonomo