home page > Annunci immobiliari in Italia > Campania > Napoli > Nola > Negozi uffici capannoni in vendita > Scheda immobile

Negozi uffici capannoni in vendita a Nola

COMPILA IL MODULO SOTTOSTANTE PER RICEVERE MAGGIORI INFORMAZIONI







Invia la richiesta ad altre agenzie
Accetto il trattamento dei miei dati



Living di nappi giovanni

Via fonseca n° 65
80035 Nola (NA)

0815124994    0815124994    3923433873    Riferimenti: Giovanni Nappi

Nola
Prezzo: € 1.300.000
G
3
779
Piano terra



Descrizione:
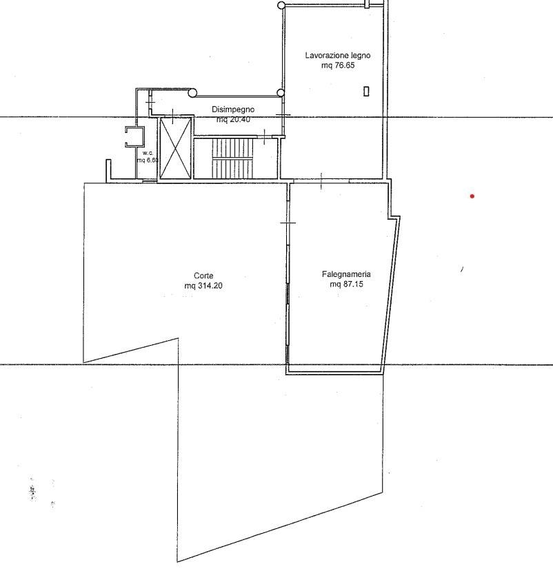
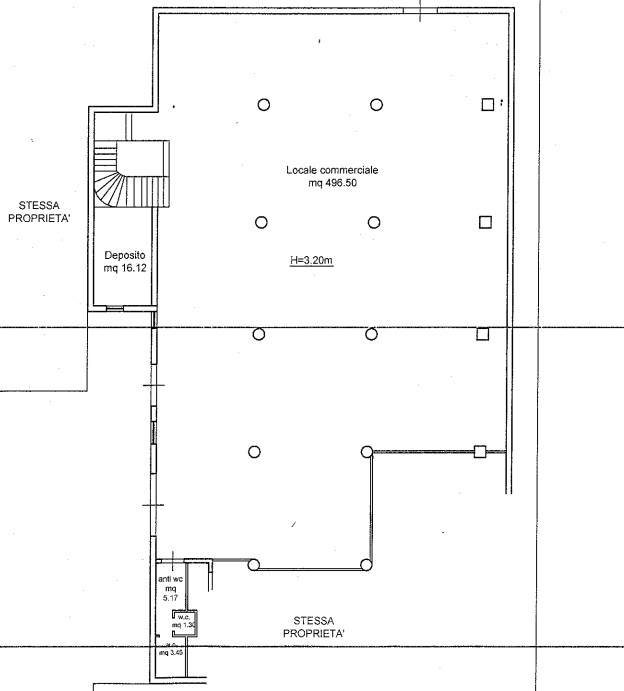
Posizione: nola, a breve distanza dall'uscita autostradale e dal centro della città e su strada con un notevole scorrimento di traffico veicolare ;tipologia: locale di 525 mq circa su unico livello e con locale deposito seminterrato di 66 mq e ampia area esterna a parcheggio di 765 mq; locale affiancato di 191 mq con destinazione artigianale con area esterna di 314 mq note: - la struttura è realizzata in cemento armato e con copertura in cemento;- l'area esterna complessiva è di 1079 mq;- l'attività che si svolge all'interno del locale commerciale è della grande distribuzione mentre il locale artigianale in adiacenza è libero;- rendita mensile di 6000 euro- inutile sottolineare che l'immobile è strategico per la posizione e per la conseguente grossa visibilità di cui è dotato oltre al fatto che la rendita può aumentare locando la superficie ancora libera classe energetica: g




Caratteristiche immobile:
Codice inserzione: 1762396291
Rif. Annuncio: 1024UF8262-5-3015
Provincia: Napoli
Comune: Nola
Superficie (Mq) : 779 Mq.
Tipo immobile: Negozi uffici capannoni
Stato immobile: usato
Piano: Piano terra
Bagni: 3

Costi:
Prezzo € 1.300.000


Efficienza energetica:
Classe energetica: G