Descrizione:
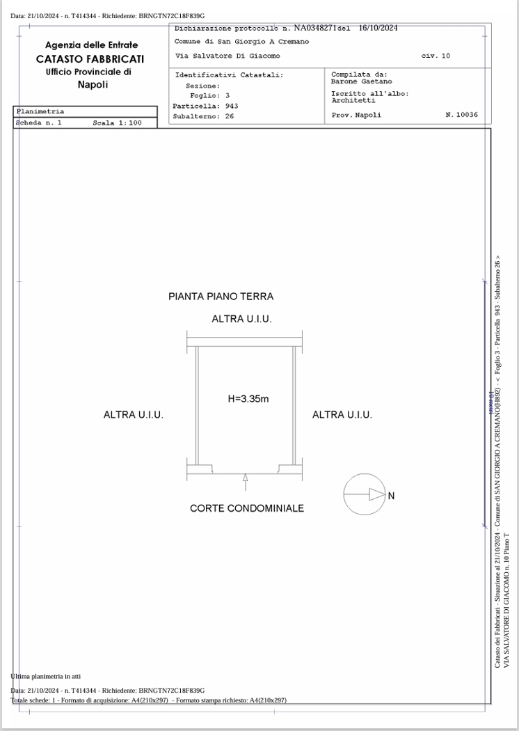
Garage in vendita ? san giorgio a cremanovia salvatore di giacomo n. 10 ? metrature: da 19 a 39 mq ? altezza: 3,35 mideale come: ? posto auto ? deposito ? investimentotrattativa riservata
| Codice inserzione: | 1769560824 |
| Rif. Annuncio: | Cod. rif 3290214VRG |
| Provincia: | Napoli |
| Comune: | San Giorgio a Cremano |
| Superficie (Mq) : | 20 Mq. |
| Tipo immobile: | Garage |
| Prezzo | info in agenzia |