home page > Annunci immobiliari in Italia > Campania > Salerno > Fisciano > appartamenti in vendita > Scheda immobile

Appartamento in vendita a Fisciano

COMPILA IL MODULO SOTTOSTANTE PER RICEVERE MAGGIORI INFORMAZIONI







Invia la richiesta ad altre agenzie
Accetto il trattamento dei miei dati



Casaspetti

Via torino 55
84098 Pontecagnano Faiano (SA)

089.701.2434    Riferimenti: CASASPETTI

Fisciano
Prezzo: € 195.000
2
1
55



Descrizione:
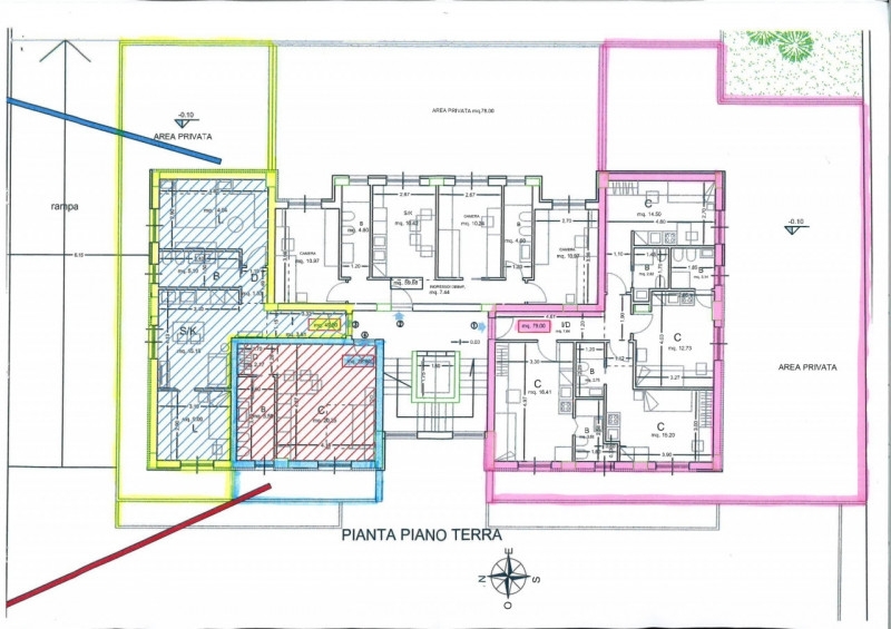
Nel comune di fisciano, è in corso la realizzazione di appartamenti di nuova costruzione pensati per offrire soluzioni abitative moderne, funzionali e ad alto potenziale abitativo o di investimento. Il progetto prevede monolocali, bilocali e trilocali, con diverse metrature e configurazioni, in una zona tranquilla ma strategicamente collegata.il complesso sorgerà in una posizione particolarmente favorevole: a circa 1,5 km dall'università degli studi di salerno e a circa 1 km dallo svincolo autostradale, ideale per studenti, professionisti, famiglie o investitori alla ricerca di immobili facilmente locabili.piano rialzatoè disponibile una soluzione di circa 80 mq con 33 mq di balconi, composta internamente da quattro monolocali, ciascuno con bagno e angolo cottura, oltre a box auto incluso. Sono inoltre disponibili un monolocale di circa 28 mq con 2 mq di balcone, dotato di angolo cottura e senza box auto, e un trilocale di circa 49 mq con 6 mq di balconi, composto da due camere da letto, soggiorno con cucina a vista, bagno e box auto.primo pianosono previsti due bilocali, ciascuno di circa 39 mq con 3 mq di balconi, composti da due ambienti, angolo cottura e bagno, con box auto incluso; è prevista anche la possibilità di acquisto senza box.secondo pianodisponibili due ampie soluzioni di circa 80 mq ciascuna con 5 mq di balconi, composte da tre camere da letto, salone con cucina e due bagni, complete di box auto.il contesto è residenziale e riservato, ma allo stesso tempo vicino a tutti i principali servizi, attività commerciali e collegamenti. Un intervento ideale per chi cerca nuove costruzioni in un'area ad alta domanda, perfette sia come abitazione principale sia come investimento a reddito.cosa aspetti? casaspetti! contattaci telefonicamente o via whatsapp al + oppure al +




Caratteristiche immobile:
Codice inserzione: 1769767885
Rif. Annuncio: 4256522
Provincia: Salerno
Comune: Fisciano
Superficie (Mq) : 55 Mq.
Tipo immobile: Appartamento
Stato immobile: nuovo
Camere: 2
Garage: Singolo
Bagni: 1

Costi:
Prezzo € 195.000


Efficienza energetica:
Riscaldamento: autonomo