Descrizione:
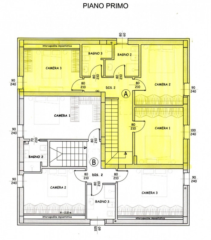
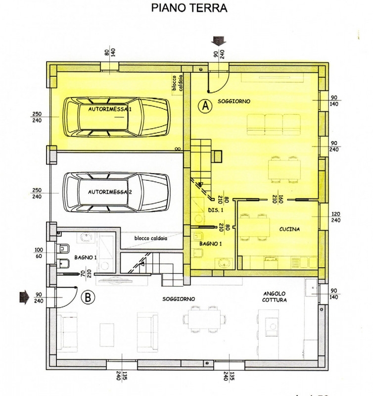
Anzola emilia nella campagna a 2 km dal paese, bellissima ed ampia porzione di villa bifamiliare in costruzione ad alta efficienza energetica con riscaldamento autonomo a pavimento, isolamento termico con muri 'a cappotto' e isolamento acustico, tetto in legno a vista ventilato e coibentato, impianto fotovoltaico, impianto di climatizzazione e predisposizione impianto anti-intrusione. All'interno la casa è composta da un piano terra con: salone, cucina abitabile separata oppure a vista, bagno e garage; piano primo con 3 camere e 2 bagni. All'esterno giardino privato di mq.380 circa con 2 posti auto. Consegna settembre 2027. Per ulteriori dettagli o visite in cantiere chiamaci allo