home page > Annunci immobiliari in Italia > Emilia-Romagna > Bologna > Casalecchio di Reno > Negozi uffici capannoni in affitto > Scheda immobile

Negozi uffici capannoni in affitto a Casalecchio di Reno

COMPILA IL MODULO SOTTOSTANTE PER RICEVERE MAGGIORI INFORMAZIONI







Invia la richiesta ad altre agenzie
Accetto il trattamento dei miei dati



Immobiliare safa srls

Via porrettana 268
40033 Casalecchio di Reno (BO)

0514852327

Casalecchio di Reno
Prezzo: € 7.000
3
700
99



Descrizione:
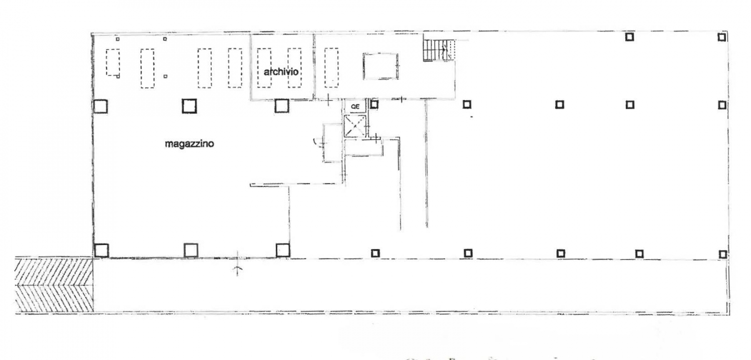
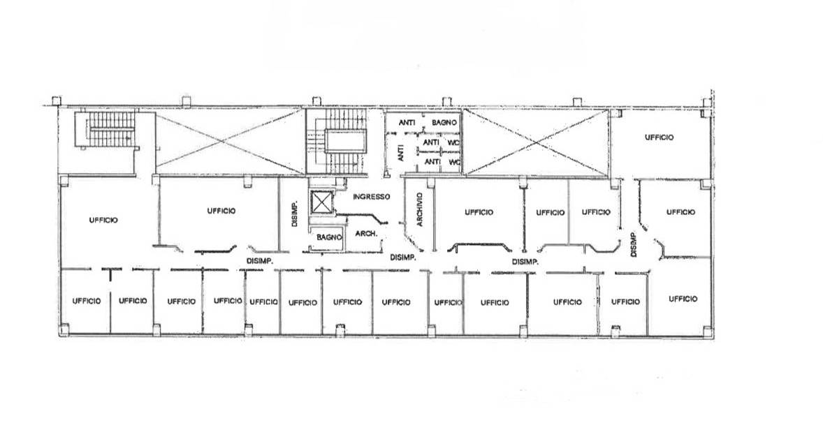
Si propone in locazione l'intero terzo piano, per una superficie complessiva di circa 700 mq lordi, all'interno di palazzina direzionale.gli spazi risultano già suddivisi con partizioni interne, consentendo un utilizzo immediato senza ulteriori interventi.la disponibilità comprende n. 22 posti auto ad uso esclusivo. è inoltre presente un seminterrato di circa 300 mq, con luce naturale, altezza interna di 3 m e accesso carrabile.il canone richiesto è pari a circa eu. 7.000/mese (120 eu./mq/anno), comprensivo dei posti auto, con possibilità di trattativa per l'intera superficie e soluzioni di ingresso agevolato. Classe energetica: non indicata




Caratteristiche immobile:
Codice inserzione: 1759198313
Rif. Annuncio: safa uff 2909
Provincia: Bologna
Comune: Casalecchio di Reno
Superficie (Mq) : 700 Mq.
Tipo immobile: Negozi uffici capannoni
Stato immobile: usato
Piano: Ultimo piano
Bagni: 3

Costi:
Prezzo € 7.000


Efficienza energetica: