home page > Annunci immobiliari in Italia > Emilia-Romagna > Bologna > Castel Maggiore > Negozi uffici capannoni in vendita > Scheda immobile

Negozi uffici capannoni in vendita a Castel Maggiore

COMPILA IL MODULO SOTTOSTANTE PER RICEVERE MAGGIORI INFORMAZIONI







Invia la richiesta ad altre agenzie
Accetto il trattamento dei miei dati



Quimmo agency

Via galileo galilei 6
48018 Faenza (RA)

0299944698

Castel Maggiore
Prezzo: € 820.000
C
1
451



Descrizione:
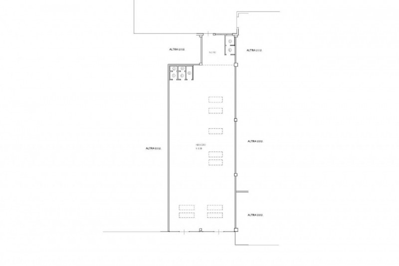
Immobile a reddito costituito da porzione di capannone commerciale facente parte di un complesso commerciale sviluppato su due piani fuori terra sito in via gramsci n. 221 nel comune di castelmaggiore (bo) in zona centrale.l'immobile è composto da un negozio (utilizzato da rivenditore di prodotti per l'igiene della casa e della persona), con piccolo retro uso magazzino, servizi per il personale e clientela, sito al piano terra;ottimi collegamenti viari e ampia disponibilità di parcheggio.immobile locato con regolare contratto.classe energetica: c indice di prestazione energetica 20,24 kwh/mc annosuperficie capannone: 451 mqpiena proprietà:d/8 (cf) foglio 11 particella 219 subalterno 3




Caratteristiche immobile:
Codice inserzione: 1757386473
Rif. Annuncio: 24037
Provincia: Bologna
Comune: Castel Maggiore
Superficie (Mq) : 451 Mq.
Tipo immobile: Negozi uffici capannoni
Stato immobile: usato
Bagni: 1

Costi:
Prezzo € 820.000


Efficienza energetica:
Classe energetica: C