Descrizione:
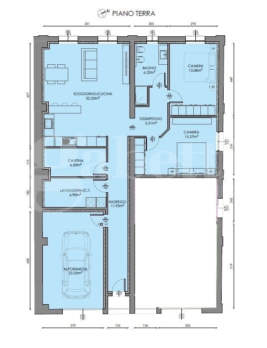
Gabetti san giovanni in persiceto propone in esclusiva nuovo appartamento centralissimo con cantina e posto auto, e a chi acquista entro luglio 2025 verrà regalata una bici elettrica per poter girare comodamente in centro.l'appartamento è al piano terra in palazzina senza spese condominiali, nuovo da impresa in classe a4. L'immobile sarà dotato di travi di legno a vista, tapparelle elettriche, infissi esterni in pvc, ventilazione meccanica forzata e riscaldamento a pavimento. l'appartamento è composto da sala/cucina, 2 camere, bagno, vano tecnico lavanderia e cantina/ripostiglio. Volendo autorimessa, a 20.000 euro.possibilità di parcheggio nei posti auto in area comune. consegna prevista per maggio/giugno 2026.classe energetica a4. Rif. Na123pt. Prezzi a partire da