home page > Annunci immobiliari in Italia > Emilia-Romagna > Bologna > Crevalcore > appartamenti in vendita > Scheda immobile

Appartamento in vendita a Crevalcore

COMPILA IL MODULO SOTTOSTANTE PER RICEVERE MAGGIORI INFORMAZIONI







Invia la richiesta ad altre agenzie
Accetto il trattamento dei miei dati



San giovanni in persiceto

Circonvallazione liberazione 1
40017 San Giovanni in Persiceto (BO)

0516879053

Crevalcore
Prezzo: € 175.000
2
1
85



Descrizione:
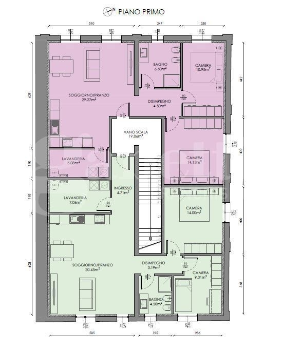
Gabetti san giovanni in persiceto propone in esclusivanuovi appartamenti centralissimi con garage, e a chi acquista entro luglio 2025 verrà regalata una bici elettrica per poter girare comodamente in centro.gli appartamenti sono al primo piano in palazzina senza spese condominiali, nuovi da impresa in classe a4. gli immobili saranno dotati di travi di legno a vista, tapparelle elettriche, infissi esterni in pvc, ventilazione meccanica forzata e riscaldamento a pavimento. gli appartamenti sono composti da sala/cucina, 2 camere, bagno, e vano tecnico lavanderia. Volendo autorimessa, a 20.000 euro. Possibilità di parcheggio nei posti auto in area comune. consegna prevista per maggio/giugno 2026.classe energetica a4. Rif. Na123p1. Prezzi a partire da




Caratteristiche immobile:
Codice inserzione: 1768783317
Rif. Annuncio: NA123P1VRG
Provincia: Bologna
Comune: Crevalcore
Superficie (Mq) : 85 Mq.
Tipo immobile: Appartamento
Stato immobile: nuovo
Camere: 2
Garage: Singolo
Bagni: 1

Costi:
Prezzo € 175.000


Efficienza energetica:
Indice di prestazione energetica (EPgl): 20 kWh/mq annui
Riscaldamento: autonomo