home page > Annunci immobiliari in Italia > Emilia-Romagna > Bologna > Molinella > Rustici in vendita > Scheda immobile

Rustici in vendita a Molinella

COMPILA IL MODULO SOTTOSTANTE PER RICEVERE MAGGIORI INFORMAZIONI







Invia la richiesta ad altre agenzie
Accetto il trattamento dei miei dati



Ica immobiliare

Via brugnoli, 19/c
40121 Bologna

0516492964    Riferimenti: Anna

Molinella
Prezzo: € 92.000
440



Descrizione:
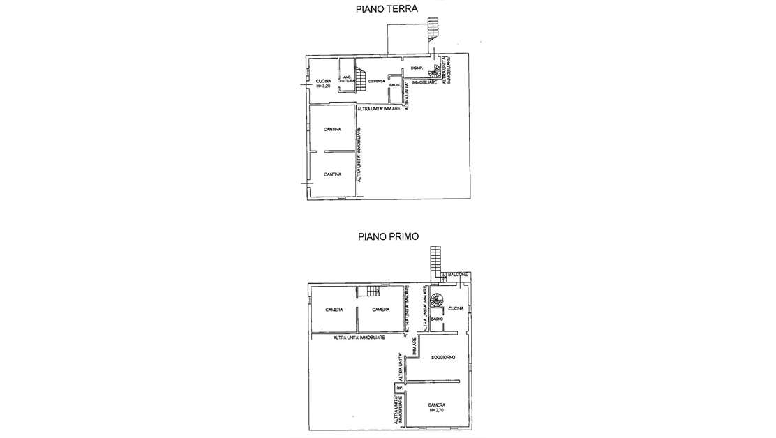
Casale di 440 mq con spazio accessorio di 220 mq a pochi km dal centro abitato di budrio - selva malvezzi in posizione centralissima e comoda ai servizi, disponiamo di casale di 440mq + annesso spazio accessorio di 220mq e giardino privato di 3000mq. la soluzione dà la possibilità di realizzare 2/3 ville bi-familiari o 4 unità abitative €92.000 accettasi permute classe energetica: in fase di valutazione




Caratteristiche immobile:
Codice inserzione: 1773879079
Rif. Annuncio: V002970
Provincia: Bologna
Comune: Molinella
Superficie (Mq) : 440 Mq.
Tipo immobile: Rustici

Costi:
Prezzo € 92.000


Efficienza energetica: