home page > Annunci immobiliari in Italia > Emilia-Romagna > Bologna > San Lazzaro di Savena > Case e ville indipendenti in vendita > Scheda immobile

Case e ville indipendenti in vendita a San Lazzaro di Savena

COMPILA IL MODULO SOTTOSTANTE PER RICEVERE MAGGIORI INFORMAZIONI







Invia la richiesta ad altre agenzie
Accetto il trattamento dei miei dati



Arbitrium srl

Via leandro alberti 89/2/c
40121 Bologna

0039.3271116827    Riferimenti: arbitrium immobiliare

San Lazzaro di Savena
Prezzo: € 990.000
C
605
4
1



Descrizione:
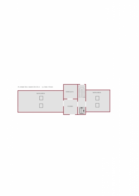
Consulente: lauracomposizione: l'immobile si sviluppa su 4 livelli. Al primo primo piano si trova un meraviglioso ingresso di rappresentanza di circa 20 mq che conduce ad un doppio salone con accesso alla prima terrazza panoramica; comunicante, ma volendo separata è presente una cucina abitabile con accesso alla seconda terrazza anche questa dalla metratura generosa; a completare questo livello un comodo bagno ospiti finestrato e con box doccia. Per accedere al piano superiore è possibile utilizzare la scala o il comodo ascensore a sevizio di tutti i piani ad esclusione della mansarda. Al secondo piano si trova una zona notte composta da tre ampie camere matrimoniali tutte dotate di bagno en-suite, camera doppia e studio dotato di punto acqua entrambe con accesso alla terrazza panoramica. Su questo stesso livello interessante soluzione semi-indipendente al momento adibita a bilocale composta da zona giorno con angolo cottura e accesso a terrazzo panoramico, camera doppia e bagno finestrato con box doccia. All'ultimo piano studio con terrazzino di pertinenza ad asola e due soffitte pavimentate e rifinite per stoccaggio. Al piano terra troviamo infine ulteriori spazi abitativi composti da: una splendida taverna finestrata di 110 mq con accesso indipendente, ulteriore taverna finestrata con ingresso indipendente adibita ad ufficio, ampia lavanderia, bagno ospiti finestrato, spazioso disimpegno con armadiatura su misura, area spa e palestra. A completare la proprietà garage di 40 mq con doppio ingresso e giardino di circa 3.700 mq con predisposizione piscina.caratteristiche: l'immobile è stato completamente ristrutturato nel 2019 con un sapiente intervento parzialmente manutentivo e dispone di finiture di pregio anni 80 che si sposano con un gusto contemporaneo e scelte stilistiche accattivanti. Dispone di pavimenti in gres porcellanato effetto cemento, pavimentazione in ceramiche e marmo, pavimentazione in parquet, infissi in triplo vetro scorrevoli con apertura a vasistas dotate anche di tapparelle motorizzate e zanzariere, riscaldamento e raffreddamento autonomo con modalità elettrica o a gas, pannello solare termico per l'acqua calda, filodiffusione e impianto di allarme con telecamere perimetrali.contesto: porzione di villa situata posizione pedecollinare, immersa nel verde e in un contesto residenziale ricercato, facilmente raggiungibile dai centri urbani di bologna e san lazzaro. commento: oggetto pronto da vivere dotato di tutti i confort con spazi generosi, ideali anche per due nuclei familiari.immerso in un contesto incantevole per godere delle bellezze naturali pur restando appena fuori dalle dinamiche metropolitane. con la possibilità di acquisto anche dell'altra porzione di bifamiliare, per avere una soluzione abitativa che soddisfi l'esigenza di un ulteriore nucleo abitativo.per info e appuntamenti: arbitrium immobiliare ufficio mazzini




Caratteristiche immobile:
Codice inserzione: 1773719027
Rif. Annuncio: LA-43
Provincia: Bologna
Comune: San Lazzaro di Savena
Superficie (Mq) : 605 Mq.
Tipo immobile: Case e ville indipendenti
Stato immobile: ristrutturato
Anno costruzione/ristrutturazione: 1980
Piano: 4
Garage: Doppio
Posti auto scoperti: 1 posto auto
Terrazze: 2

Costi:
Prezzo € 990.000


Efficienza energetica:
Classe energetica: C