home page > Annunci immobiliari in Italia > Emilia-Romagna > Bologna > Sant'Agata Bolognese > appartamenti in vendita > Scheda immobile

Appartamento in vendita a Sant'Agata Bolognese

COMPILA IL MODULO SOTTOSTANTE PER RICEVERE MAGGIORI INFORMAZIONI







Invia la richiesta ad altre agenzie
Accetto il trattamento dei miei dati



San giovanni in persiceto

Circonvallazione liberazione 1
40017 San Giovanni in Persiceto (BO)

0516879053

Sant'Agata Bolognese
Prezzo: € 280.000
2
1
100
1



Descrizione:
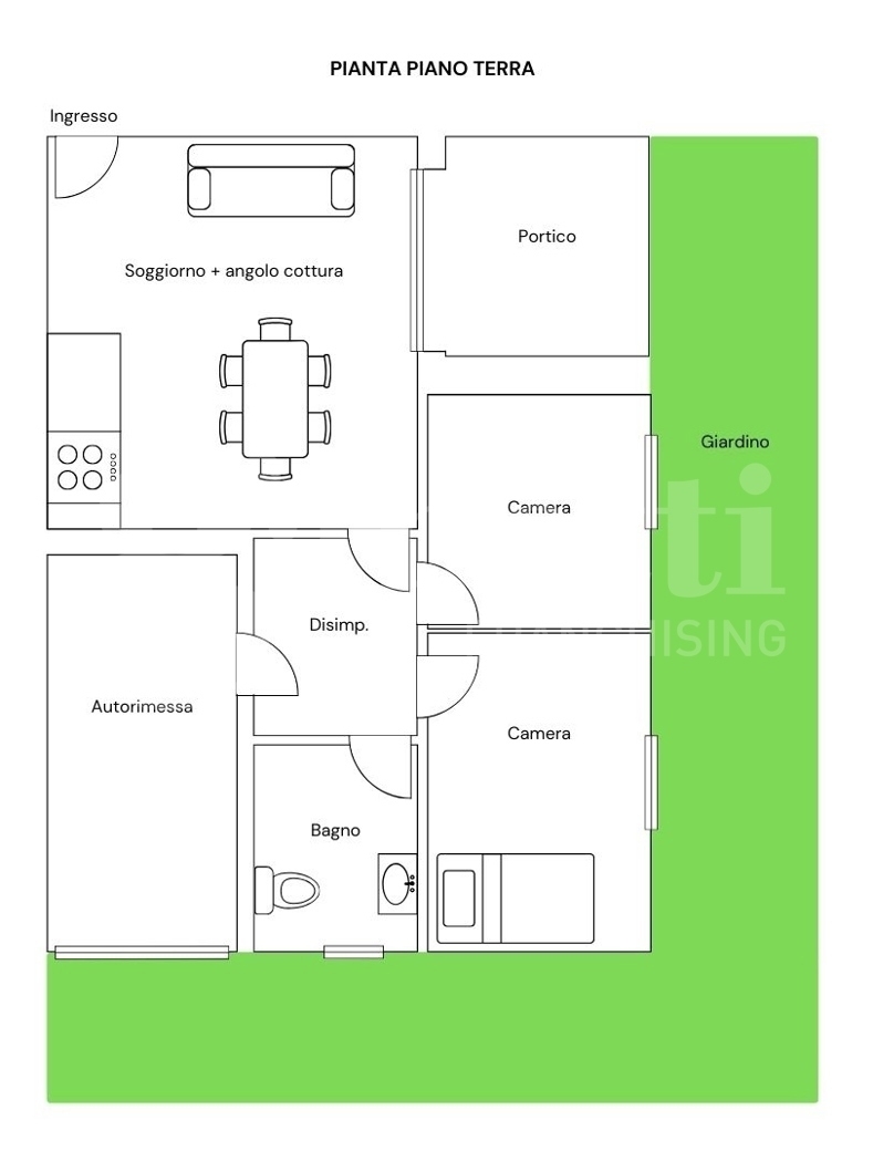
Gabetti san giovanni in persiceto propone nuova palazzina esclusiva in classe a4 a due passi dal centro, comoda ai servizi, con diverse tipologie con giardini privati, ascensori, garage e posti auto. esempio pt: ingresso su soggiorno con angolo cottura, disimpegno, due ampie camere, bagno, portico, autorimessa e giardino privato.(l'immagine iniziale è un render puramente a scopo illustrativo).prezzo euro 280.000. Rif. Na126pt.per info rivolgersi in ufficio.




Caratteristiche immobile:
Codice inserzione: 1758843650
Rif. Annuncio: 1758843650
Provincia: Bologna
Comune: Sant'Agata Bolognese
Superficie (Mq) : 100 Mq.
Tipo immobile: Appartamento
Stato immobile: nuovo
Camere: 2
Posti auto scoperti: 1 posto auto
Tipologia giardino : Privato
Bagni: 1
Terrazze: 1

Costi:
Prezzo € 280.000


Efficienza energetica:
Riscaldamento: autonomo