home page > Annunci immobiliari in Italia > Emilia-Romagna > Forlì-Cesena > Cesena > Negozi uffici capannoni in vendita > Scheda immobile

Negozi uffici capannoni in vendita a Cesena

COMPILA IL MODULO SOTTOSTANTE PER RICEVERE MAGGIORI INFORMAZIONI







Invia la richiesta ad altre agenzie
Accetto il trattamento dei miei dati



Quimmo agency

Via galileo galilei 6
48018 Faenza (RA)

0299944698

Cesena
Prezzo: € 514.000
3
470



Descrizione:
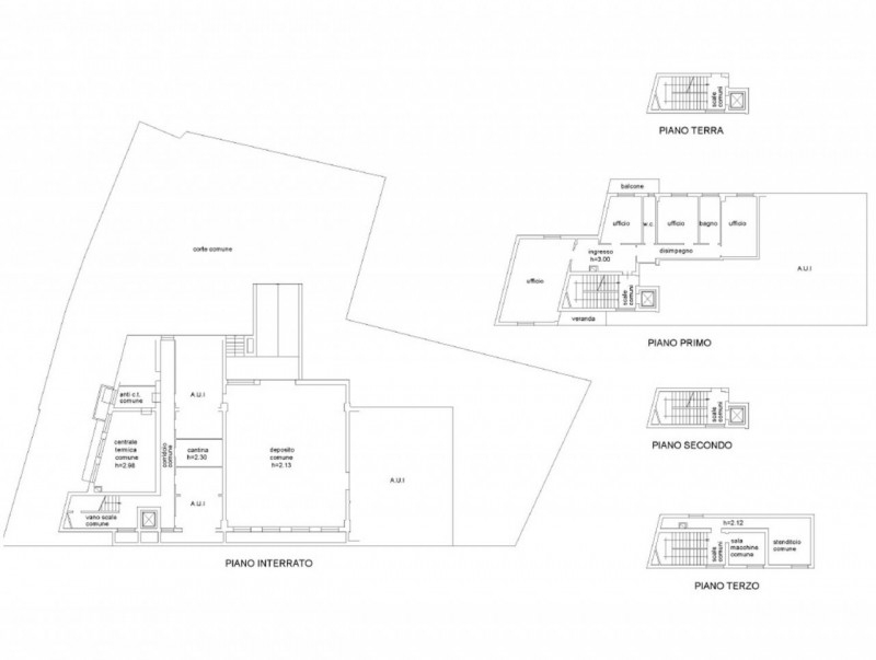
Proponiamo in vendita un interessante complesso immobiliare situato in una zona comoda e servita di cesena, in via federico comandini. La proprietà si compone di un appartamento, un ufficio e un laboratorio, offrendo una soluzione versatile ideale sia per investimento sia per chi necessita di spazi residenziali e professionali nello stesso contesto.al pino primo si trovano l'appartamento e l'ufficio con ambienti ampi e ben distribuiti, adatti ad accogliere una famiglia o ad essere convertiti in ulteriori spazi direzionali.al piano terra e seminterrato si trovano invece il laboratorio e vani direzionali, caratterizzati da ambienti funzionali, vani tecnici e magazzini, adatti ad attività professionali, artigianali o direzionali. Gli spazi risultano flessibili e facilmente adattabili a diverse esigenze operative.la posizione, a pochi minuti dal centro cittadino e ben collegata alla viabilità principale, rende il fabbricato particolarmente interessante per chi cerca un immobile multifunzionale in una zona strategica di cesena.segnaliamo che l'immobile risulta parzialmente locato con regolare contratto.




Caratteristiche immobile:
Codice inserzione: 1765792447
Rif. Annuncio: 2537836
Provincia: Forlì-Cesena
Comune: Cesena
Superficie (Mq) : 470 Mq.
Tipo immobile: Negozi uffici capannoni
Stato immobile: usato
Bagni: 3

Costi:
Prezzo € 514.000


Efficienza energetica:
Riscaldamento: centralizzato