home page > Annunci immobiliari in Italia > Emilia-Romagna > Forlì-Cesena > Cesena > Negozi uffici capannoni in affitto > Scheda immobile

Negozi uffici capannoni in affitto a Cesena

COMPILA IL MODULO SOTTOSTANTE PER RICEVERE MAGGIORI INFORMAZIONI







Invia la richiesta ad altre agenzie
Accetto il trattamento dei miei dati



Passerini immobiliare

Via mura barriera ponente 13
47521 Cesena (FC)

0547.24743    Riferimenti: Gabriele Passerini

Cesena
Prezzo: € 2.500
D
1
450
Piano terra



Descrizione:
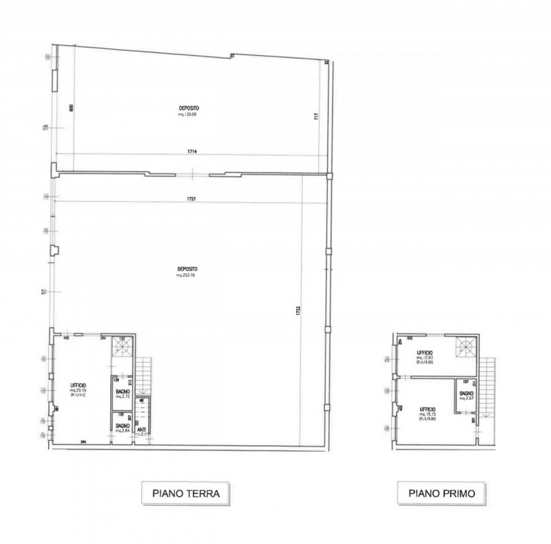
A cesena zona sant'egidio affittiamo capannone di totali circa 450 mq di cui uffici-servizi di 70 mq e corte privata recintata con ampia pensilina di 250 mq.l'immobile si presenta in ottime condizioni e con tutti impianti a norma.richiesta 2.500 euro/meseper info roberto sono specializzato in immobili commerciali--- capannoni, uffici, negozi ma anche attività attive o inattive ---chiamatemi direttamente per sottoporvi panoramica di immobili idonei.oppure scrivetemi a le seguenti informazioni:- attività o uso che si intende svolgere- tipologia di immobile- mq necessari di interno specificando quanti uffici e altri vani- mq di esterno se necessari (corte privata o fronte strada di passaggio..)- zona ideale- budget massimo disponibilevi contatterò quanto prima con una panoramica di propostegrazieape d




Caratteristiche immobile:
Codice inserzione: 1760495714
Rif. Annuncio: R1546
Provincia: Forlì-Cesena
Comune: Cesena
Superficie (Mq) : 450 Mq.
Tipo immobile: Negozi uffici capannoni
Stato immobile: usato
Piano: Piano terra
Bagni: 1

Costi:
Prezzo € 2.500


Efficienza energetica:
Classe energetica: D
Riscaldamento: autonomo