home page > Annunci immobiliari in Italia > Emilia-Romagna > Forlì-Cesena > Cesena > Negozi uffici capannoni in affitto > Scheda immobile

Negozi uffici capannoni in affitto a Cesena

COMPILA IL MODULO SOTTOSTANTE PER RICEVERE MAGGIORI INFORMAZIONI







Invia la richiesta ad altre agenzie
Accetto il trattamento dei miei dati



Passerini immobiliare

Via mura barriera ponente 13
47521 Cesena (FC)

0547.24743    Riferimenti: Gabriele Passerini

Cesena
Prezzo: info in agenzia
D
1
500
1



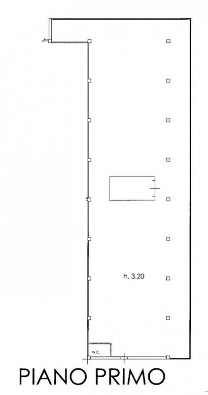
Descrizione:
A cesena zona concessionarie, al primo piano con ascensore, affittiamo ufficio open space di 500 mq.l'immobile si presenta da rivedere in base alle esigenze in con accordo con la proprietà.per info roberto sono specializzato in immobili commerciali--- capannoni, uffici, negozi ma anche attività attive o inattive ---chiamatemi direttamente per sottoporvi panoramica di immobili idonei.oppure scrivetemi a le seguenti informazioni:- attività o uso che si intende svolgere- tipologia di immobile- mq necessari di interno specificando quanti uffici e altri vani- mq di esterno se necessari (corte privata o fronte strada di passaggio..)- zona ideale- budget massimo disponibilevi contatterò quanto prima con una panoramica di propostegrazieape d




Caratteristiche immobile:
Codice inserzione: 1762227692
Rif. Annuncio: R1521
Provincia: Forlì-Cesena
Comune: Cesena
Zona: Sant'Egidio  
Superficie (Mq) : 500 Mq.
Tipo immobile: Negozi uffici capannoni
Stato immobile: usato da riattare
Piano: 1
Bagni: 1

Costi:
Prezzo info in agenzia


Efficienza energetica:
Classe energetica: D
Riscaldamento: autonomo