home page > Annunci immobiliari in Italia > Emilia-Romagna > Forlì-Cesena > Cesena > Negozi uffici capannoni in affitto > Scheda immobile

Negozi uffici capannoni in affitto a Cesena

COMPILA IL MODULO SOTTOSTANTE PER RICEVERE MAGGIORI INFORMAZIONI







Invia la richiesta ad altre agenzie
Accetto il trattamento dei miei dati



Passerini immobiliare

Via mura barriera ponente 13
47521 Cesena (FC)

0547.24743    Riferimenti: Gabriele Passerini

Cesena
Prezzo: info in agenzia
A1
400



Descrizione:
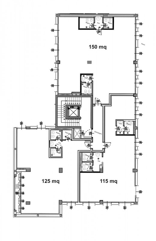
A cesena in complesso dirigenziale moderno, vendiamo ufficio nuovo triplo di 400 mq allo stato avanzato con comodo parcheggio.immobile attualmente in 3 open space da finire per suddivisioni in base alle esigenze e impianto elettrico, possibilità di parcheggi in proprietà.per info roberto sono specializzato in immobili commerciali--- capannoni, uffici, negozi ma anche attività attive o inattive ---chiamatemi direttamente per sottoporvi panoramica di immobili idonei.oppure scrivetemi a le seguenti informazioni:- attività o uso che si intende svolgere- tipologia di immobile- mq necessari di interno specificando quanti uffici e altri vani- mq di esterno se necessari (corte privata o fronte strada di passaggio..)- zona ideale- budget massimo disponibilevi contatterò quanto prima con una panoramica di propostegrazieape d




Caratteristiche immobile:
Codice inserzione: 1775788499
Rif. Annuncio: R3034
Provincia: Forlì-Cesena
Comune: Cesena
Superficie (Mq) : 400 Mq.
Tipo immobile: Negozi uffici capannoni
Stato immobile: nuovo

Costi:
Prezzo info in agenzia


Efficienza energetica:
Classe energetica: A1