home page > Annunci immobiliari in Italia > Emilia-Romagna > Forlì-Cesena > Dovadola > Negozi uffici capannoni in vendita > Scheda immobile

Negozi uffici capannoni in vendita a Dovadola

COMPILA IL MODULO SOTTOSTANTE PER RICEVERE MAGGIORI INFORMAZIONI







Invia la richiesta ad altre agenzie
Accetto il trattamento dei miei dati



Kapital immobiliare srl

P.zza falcone borsellino 23
47121 Forlì (FC)

0543.65105

Dovadola
Prezzo: € 670.000
G
7
1750
Ultimo piano



Descrizione:
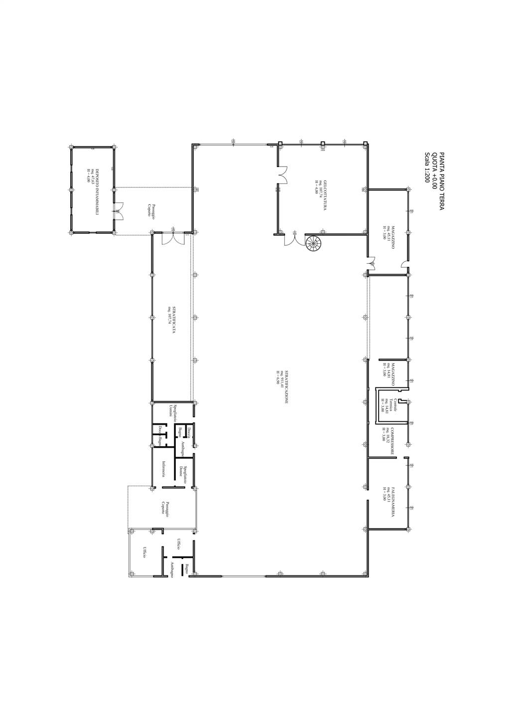
Dovadola, proponiamo capannone di 1700 mq. H. Variabile da 7,20 fino 8,00, con uffici, spogliatoi, bagni, per un 150 mq. E un piazzale che circonda l'immobile di circa 2000 mq. Ape in elaborazione. Rif. 4454. Euro 670.000 classe energetica: g




Caratteristiche immobile:
Codice inserzione: 1759892033
Rif. Annuncio: 4454
Provincia: Forlì-Cesena
Comune: Dovadola
Superficie (Mq) : 1750 Mq.
Tipo immobile: Negozi uffici capannoni
Stato immobile: usato
Piano: Ultimo piano
Arredato:
Bagni: 7

Costi:
Prezzo € 670.000


Efficienza energetica:
Classe energetica: G
Riscaldamento: autonomo