home page > Annunci immobiliari in Italia > Emilia-Romagna > Forlì-Cesena > Dovadola > Negozi uffici capannoni in vendita > Scheda immobile

Negozi uffici capannoni in vendita a Dovadola

COMPILA IL MODULO SOTTOSTANTE PER RICEVERE MAGGIORI INFORMAZIONI







Invia la richiesta ad altre agenzie
Accetto il trattamento dei miei dati



Kapital immobiliare srl

P.zza falcone borsellino 23
47121 Forlì (FC)

0543.65105

Dovadola
Prezzo: € 850.000
G
3
2570
Ultimo piano



Descrizione:
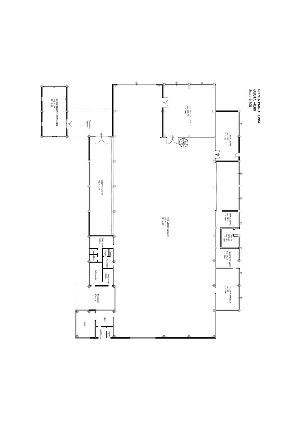
Dovadola, proponiamo coppia di capannoni a rendita per circa 70.000 euro l'anno di 2300 mq. H. Variabile da 7,00 fino 8,00, con uffici, spogliatoi, bagni, per un 200 mq. Appartamento annesso per ulteriori 70 mq e un piazzale totale che circonda gli immobili di circa 3000 mq. Ape in elaborazione. Rif. 4457. Euro 850.000 classe energetica: g




Caratteristiche immobile:
Codice inserzione: 1759892036
Rif. Annuncio: 4457
Provincia: Forlì-Cesena
Comune: Dovadola
Superficie (Mq) : 2570 Mq.
Tipo immobile: Negozi uffici capannoni
Stato immobile: usato
Piano: Ultimo piano
Arredato:
Bagni: 3

Costi:
Prezzo € 850.000


Efficienza energetica:
Classe energetica: G
Riscaldamento: autonomo