home page > Annunci immobiliari in Italia > Emilia-Romagna > Forlì-Cesena > Forlì > Negozi uffici capannoni in vendita > Scheda immobile

Negozi uffici capannoni in vendita a Forlì

COMPILA IL MODULO SOTTOSTANTE PER RICEVERE MAGGIORI INFORMAZIONI







Invia la richiesta ad altre agenzie
Accetto il trattamento dei miei dati



Kapital immobiliare srl

P.zza falcone borsellino 23
47121 Forlì (FC)

0543.65105

Forlì
Prezzo: € 115.000
1
60
3



Descrizione:
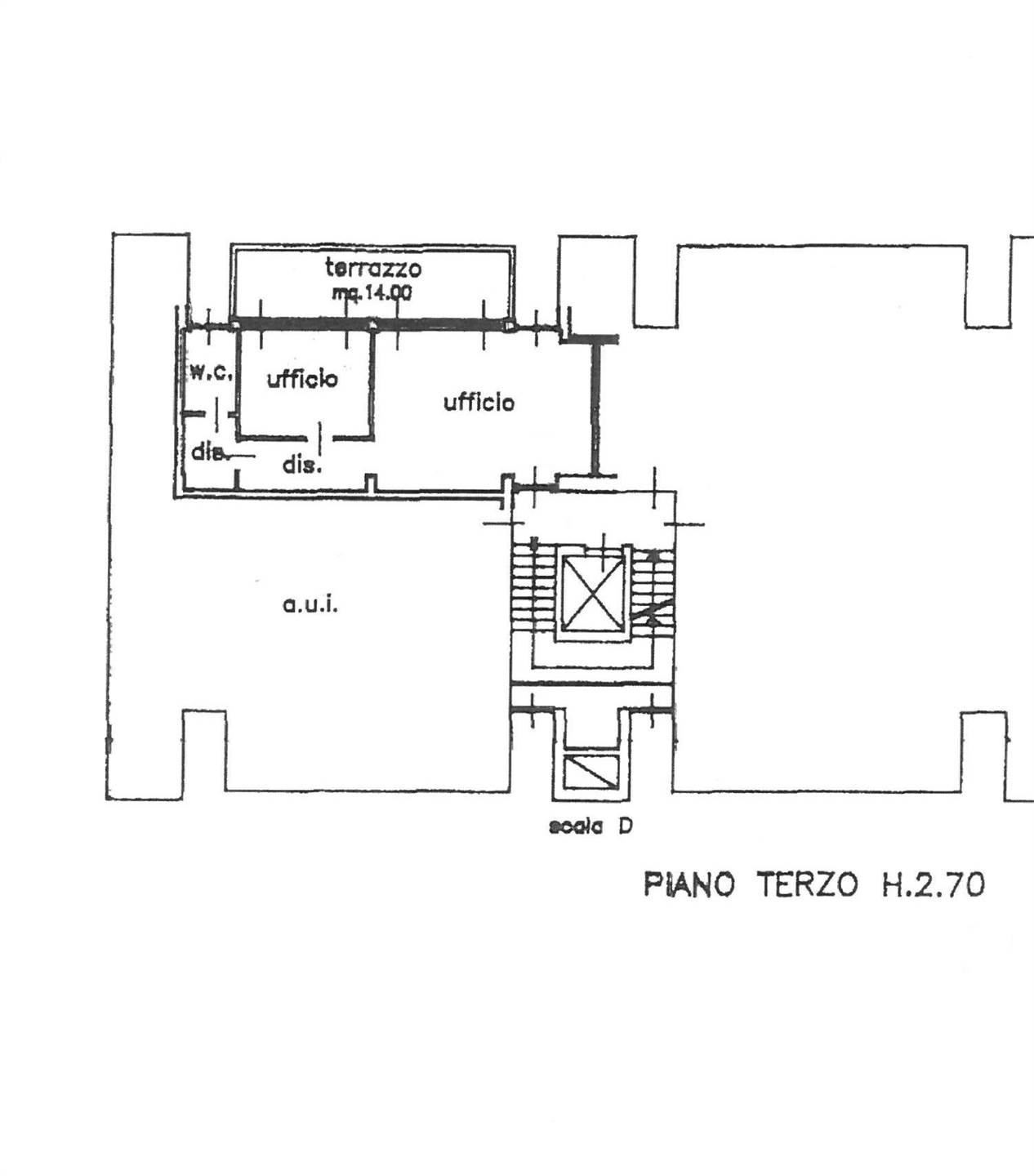
Zona centro commerciale stadium, proponiamo ufficio composto da due vani, oltre il disimpegno, bagno e ampio terrazzo, l'immobile e stato ristrutturato nel 2021. Ape in cat. C, ep 285,20. Rif. 4444. Eu. 115.000 classe energetica: c




Caratteristiche immobile:
Codice inserzione: 1760410294
Rif. Annuncio: 4444
Provincia: Forlì-Cesena
Comune: Forlì
Superficie (Mq) : 60 Mq.
Tipo immobile: Negozi uffici capannoni
Stato immobile: usato
Piano: 3
Bagni: 1
Terrazze: 1

Costi:
Prezzo € 115.000


Efficienza energetica:
Riscaldamento: autonomo