home page > Annunci immobiliari in Italia > Emilia-Romagna > Modena > Bastiglia > appartamenti in vendita > Scheda immobile

Appartamento in vendita a Bastiglia

COMPILA IL MODULO SOTTOSTANTE PER RICEVERE MAGGIORI INFORMAZIONI







Invia la richiesta ad altre agenzie
Accetto il trattamento dei miei dati



Immobili all'asta

Viale sabotino 4
20121 Milano

0280888267    Riferimenti: Ivano De Natale

Bastiglia
Prezzo: € 57.375
F
2
2
97
1



Descrizione:
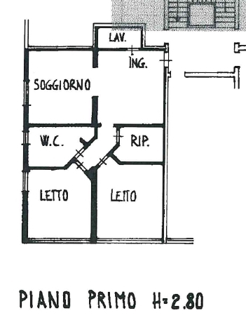
Appartamento all'asta in viale marconi, bastiglia (mo)si propone il diritto di piena proprietà di un'unità immobiliare ad uso residenziale sita in viale marconi n 74 c, nel comune di bastiglia (mo). Nello specifico si tratta di un appartamento sito al primo piano, composto cosù:- due bagni, - pranzo-soggiorno, - disimpegno notte, - due camere da letto, - un ripostiglio.l'immobile ha una superficie commerciale di mq 97.dati catastali:- foglio 4, particella 19, subalterno 17, categoria a/2, classe 2, consistenza 4,5 vani, rendita catastale € 464,81.chi siamoimmobiliallasta.it aiuta le persone a comprare casa all'asta e migliorare la qualità della loro vita senza correre rischi, grazie ad una piattaforma specializzata in aste immobiliari sviluppata intorno alle vere esigenze di chi cerca casa all'asta e ad un team di 30 professionisti esperti dedicato, che ti guida passo passo in un acquisto sicuro e certificato da una tripla garanzia sull'immobile e sul servizio.a differenza delle agenzie troverai:+ varietà: gestiamo migliaia di immobili ogni mese+ tranquillità: tripla garanzia che ti tutela da ogni rischio sull'acquistoalcuni risultati oggettivi nell'ultimo anno e mezzo:- 8.600 immobili gestiti- +500 clienti portati all'asta- +200 case aggiudicate, per un valore totale di 15 milionicontattaci subito per parlare con uno dei nostri consulenti che ti aiuterà a trovare la tua casa all'asta senza correre rischi.




Caratteristiche immobile:
Codice inserzione: 1760583288
Rif. Annuncio: ST11991
Provincia: Modena
Comune: Bastiglia
Superficie (Mq) : 97 Mq.
Tipo immobile: Appartamento
Stato immobile: usato
Piano: 1
Camere: 2
Bagni: 2

Costi:
Prezzo € 57.375


Efficienza energetica:
Classe energetica: F
Indice di prestazione energetica (EPgl): 175 kWh/mq annui
Riscaldamento: autonomo