home page > Annunci immobiliari in Italia > Emilia-Romagna > Modena > Bomporto > Case e ville indipendenti in vendita > Scheda immobile

Case e ville indipendenti in vendita a Bomporto

COMPILA IL MODULO SOTTOSTANTE PER RICEVERE MAGGIORI INFORMAZIONI







Invia la richiesta ad altre agenzie
Accetto il trattamento dei miei dati



Idea case di stefano biagini

Via muratori 55
41012 Carpi (MO)

3290643655    Riferimenti: CaSe Idea

Bomporto
Prezzo: € 399.000
A4
3
2
202
2
1



Descrizione:
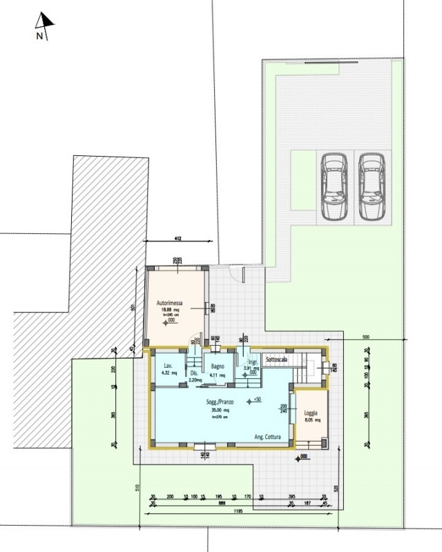
Ca247 - per info e appuntamenti stefano proponiamo in località sorbara di bomporto casa singola di nuova costruzione, consegna prevista a primavera/estate del 2026, l'immobile si sviluppa su due livelli per un totale di 165 mq ed è circondato da un'ampia area cortiliva esclusiva di 375 mq libera su 4 lati, ideale per chi cerca privacy, comfort e spazi verdi. Al piano terra si trova un grande e luminoso soggiorno con angolo cottura, loggia esterna per accesso all'area esterna, un bagno, una lavanderia ed accesso diretto all'autorimessa; con scala interna dalla zona giorno si arriva al piano primo nella zona notte composta da tre camere da letto ed un secondo bagno. Ottimo capitolato: impianto fotovoltaicoda 8kwp e batterie di accumulo da 15kwh, gli infissi sono realizzati in legnoalluminio della marca wolf fenster, pavimenti/rivestimenti/battiscola ceramiche florim, porte bianche, sanitati ideal standard, ecc.. Possibilità di personalizzazione colore esterno e scelta dei pavimenti e rivestimenti!




Caratteristiche immobile:
Codice inserzione: 1769767377
Rif. Annuncio: CA247
Provincia: Modena
Comune: Bomporto
Zona: Sorbara  
Superficie (Mq) : 202 Mq.
Tipo immobile: Case e ville indipendenti
Stato immobile: nuovo
Anno costruzione/ristrutturazione: 2026
Piano: 2
Camere: 3
Garage: Singolo
Posti auto scoperti: 1 posto auto
Bagni: 2 + lavanderia

Costi:
Prezzo € 399.000


Efficienza energetica:
Classe energetica: A4