home page > Annunci immobiliari in Italia > Emilia-Romagna > Modena > Castelfranco Emilia > Negozi uffici capannoni in vendita > Scheda immobile

Negozi uffici capannoni in vendita a Castelfranco Emilia

COMPILA IL MODULO SOTTOSTANTE PER RICEVERE MAGGIORI INFORMAZIONI







Invia la richiesta ad altre agenzie
Accetto il trattamento dei miei dati



Remax unicorn - ag farini

Via emilia ovest, 479,
41121 Modena

059454227    059454227

Castelfranco Emilia
Prezzo: € 65.000
G
1
100
Ultimo piano



Descrizione:
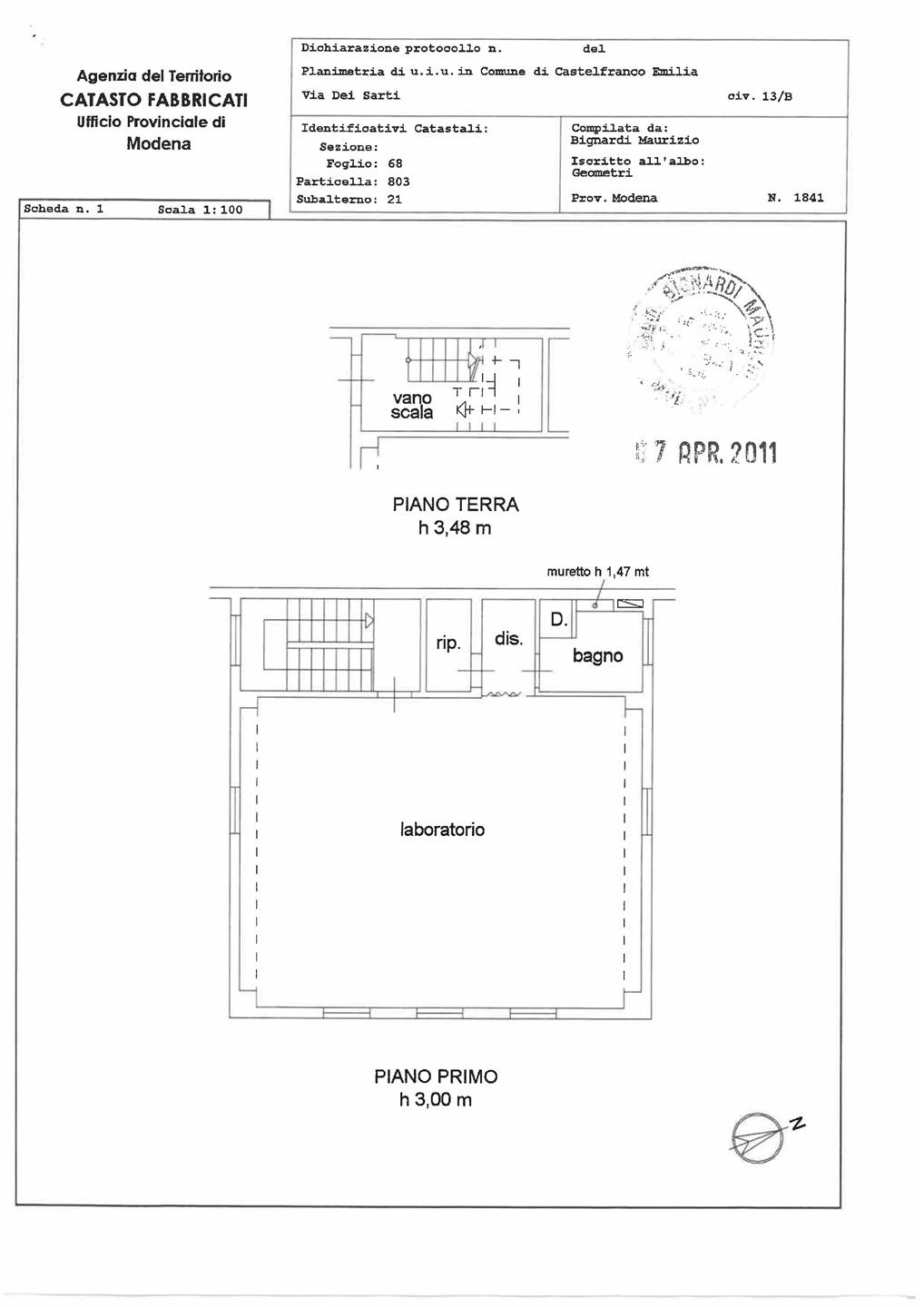
Rif 2934 vendesi laboratorio a castelfrancoa castelfranco emilia (modena ) vendiamo laboratorio situato al primo piano in zona artigianale già a reddito dal 2015 allo stesso conduttore. l'attività di confezioni di abbigliamento intimo a cui è locato, paga un canone annuale di poco superiore ai 6.000 euro . Riscaldamento interno autonomo e climatizzato. Il locale si compone di un unico grande locale per l'attività , un bagno e un piccolo magazzino.il contratto di locazione scade al 31 dicembre 2028.il locale beneficia di un comodo parcheggio antistante . La redditività è pari all' 10% annui lordi. Ottio come investimento o per essere utilizzato anche come showroom o ufficio/studio. classe energetica: g epi: 142,55 kwh/m3 anno




Caratteristiche immobile:
Codice inserzione: 1771993855
Rif. Annuncio: 2934
Provincia: Modena
Comune: Castelfranco Emilia
Superficie (Mq) : 100 Mq.
Tipo immobile: Negozi uffici capannoni
Stato immobile: usato
Piano: Ultimo piano
Bagni: 1

Costi:
Prezzo € 65.000


Efficienza energetica:
Classe energetica: G
Indice di prestazione energetica (EPgl): 142.55 kWh/mc annui
Riscaldamento: autonomo