home page > Annunci immobiliari in Italia > Emilia-Romagna > Modena > Formigine > appartamenti in vendita > Scheda immobile

Appartamento in vendita a Formigine

COMPILA IL MODULO SOTTOSTANTE PER RICEVERE MAGGIORI INFORMAZIONI







Invia la richiesta ad altre agenzie
Accetto il trattamento dei miei dati



Edilmoreali

Via emilia est, 164
41121 Modena

059364580

Formigine
Prezzo: € 520.000
2
160



Descrizione:
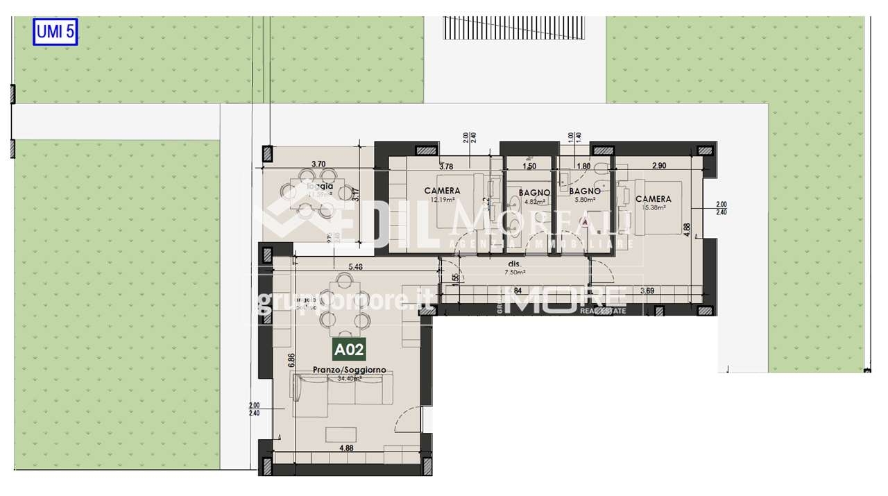
Mo860e-umi5(a2). Nostra esclusiva, casinalbo, borgo san luigi - ex salumificio maletti, in angolo verde comodo a tutti i servizi prossima realizzazione di comparto residenziale (classe energetica a4 - nzeb) composto da nr. 9 palazzine e due ville indipendenti. all'interno della palazzina umi5, di tre piani e sette unità abitative, vendesi maisonette 'a2' di 160 mq. Comm.caratteristica peculiare dell'intervento è l'adozione di avanzate tecnologie impiantistiche d'avanguardia volte al massimo contenimento del consumo energetico nel pieno rispetto dell'ambiente, infatti tutte le unità immobiliari saranno edificate in classe 'a4' -nzeb (secondo la delibera della regione emilia romagna dgr. 20 luglio 2015, n. 967).il capitolato prevede finiture di pregio tutte personalizzabili, pavimenti in ceramica grandi formati e parquet, rubinetterie e sanitari di design, riscaldamento autonomo in pompa di calore a pavimento, aria condizionata, impianto per il ricircolo dell'aria meccanizzato puntuale, pannelli fotovoltaici, addolcitore acque e predisposizione per antifurto.maisonette cosù disposta: doppio ingresso sia indipendente dal giardino che dal vano scala condominiale, soggiorno con sbocco sul portico e ampio giardino privato di 276 mq., cucina a vista, dis. Notte, due camere da letto e due bagni. A completamento della proprietà un garage di 31 mq. Al piano interrato.possibilità di personalizzazione degli spazi e delle finiture interne.prezzo: 520'000 €.consegna giugno 2027.per informazioni e visite: dott. Corica giuseppe, geom. Corica maurizio, dott. Gollini enrico, geom. Fella cristiano, geom. Zara costantino.in alternativa ulteriori info sul ns sito gruppomore.it digitando codice di riferimento o inviaci una mail energetica:




Caratteristiche immobile:
Codice inserzione: 1765152707
Rif. Annuncio: MO860E-UMI5(A2)
Provincia: Modena
Comune: Formigine
Superficie (Mq) : 160 Mq.
Tipo immobile: Appartamento
Camere: 2

Costi:
Prezzo € 520.000


Efficienza energetica: