3382058447 3382058447 Riferimenti: Hector Benedetti
Descrizione:
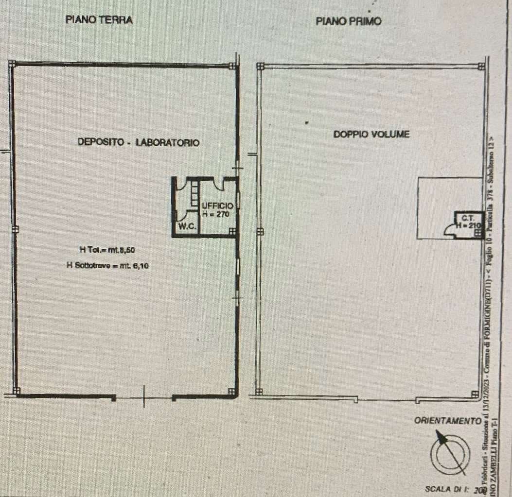
Disponibile capannone a magreta provincia di modena500 mq, già libero per essere affittato con ufficio e bagno provvisti di soppalco come da foto.classe energetica: f
Codice inserzione: | 1759705841 |
Rif. Annuncio: | A001082 |
Provincia: | Modena |
Comune: | Formigine |
Superficie (Mq) : | 500 Mq. |
Tipo immobile: | Negozi uffici capannoni |
Prezzo | € 2.600 |
Classe energetica: | F |