home page > Annunci immobiliari in Italia > Emilia-Romagna > Modena > Nonantola > appartamenti in vendita > Scheda immobile

Appartamento in vendita a Nonantola

COMPILA IL MODULO SOTTOSTANTE PER RICEVERE MAGGIORI INFORMAZIONI







Invia la richiesta ad altre agenzie
Accetto il trattamento dei miei dati



Modena sud

Viale pietro gobetti 117
41121 Modena

0597874040

Nonantola
Prezzo: € 279.000
2
2
108



Descrizione:
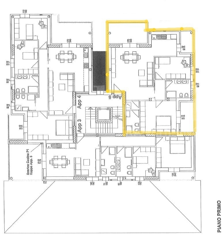
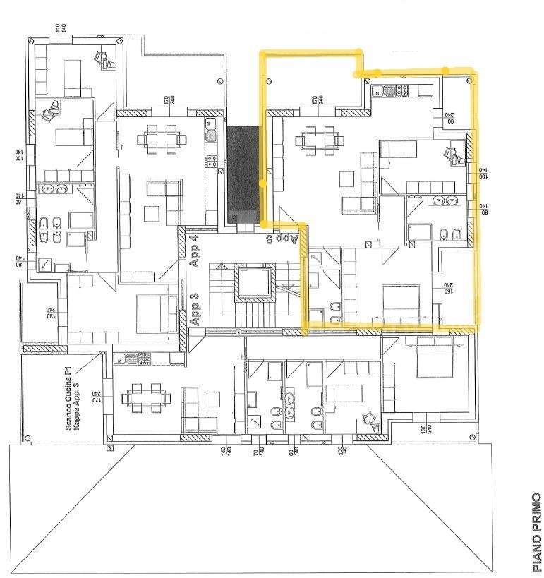
Splendido appartamento in vendita ad uso abitativo con 3 locali, situato nel cuore di nonantola (mo). Con una superficie di 108 mq, questo appartamento si trova in una palazzina di nuova costruzione con consegna prevista per luglio 2026. l'appartamento al piano primo offre una luminosa sala con accesso alla loggia, garantendo spazi aperti e comfort. L'appartamento è composto da una camera matrimoniale, una camera singola, due bagni e zona lavanderia e garage a piano terra compreso nel prezzo.questa è un'opportunità unica per chi cerca un'abitazione moderna e funzionale in una zona ben servita e in continua crescita. Contattaci per maggiori informazioni e per prenotare una visita!anastasia




Caratteristiche immobile:
Codice inserzione: 1766364094
Rif. Annuncio: Cod. rif NONAN. P1VRG
Provincia: Modena
Comune: Nonantola
Superficie (Mq) : 108 Mq.
Tipo immobile: Appartamento
Stato immobile: nuovo
Camere: 2
Garage: Singolo
Bagni: 2
Terrazze: 1

Costi:
Prezzo € 279.000


Efficienza energetica:
Riscaldamento: centralizzato