home page > Annunci immobiliari in Italia > Emilia-Romagna > Modena > Sassuolo > Negozi uffici capannoni in affitto > Scheda immobile

Negozi uffici capannoni in affitto a Sassuolo

COMPILA IL MODULO SOTTOSTANTE PER RICEVERE MAGGIORI INFORMAZIONI







Invia la richiesta ad altre agenzie
Accetto il trattamento dei miei dati



Il ventaglio

Via mazzini , 331/1
41049 Sassuolo (MO)

0536882059    0536882059    3358349393    Riferimenti: CAVANI MASSIMO

Sassuolo
Prezzo: info in agenzia
G
313



Descrizione:
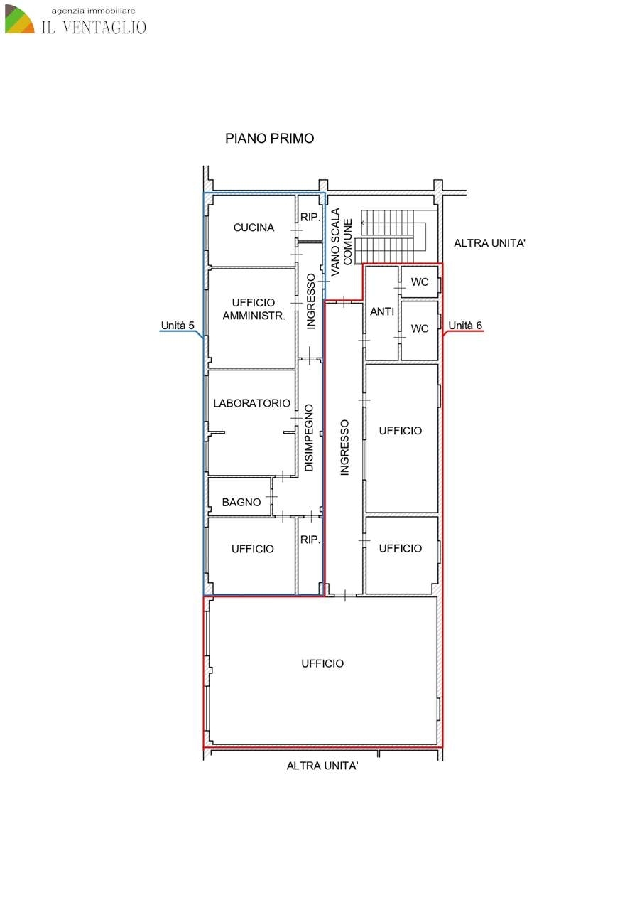
Zona comet in posizione di alta visibilità con ampio e comodo parcheggio, disponiamo di ufficio al primo ed ultimo piano per circa 313 mq diviso in vari ambienti con tre bagni. L'immobile è facilmente frazionabile in due unità rispettivamente di 124 mq e 189 mq. gli uffici sono da ristrutturare-pertanto sono personalizzabili sulle esigenze del futuro inquilino- con modalità e costi da concordare assieme alla proprietà.classe energetica: g




Caratteristiche immobile:
Codice inserzione: 1760915502
Rif. Annuncio: 3250
Provincia: Modena
Comune: Sassuolo
Superficie (Mq) : 313 Mq.
Tipo immobile: Negozi uffici capannoni

Costi:
Prezzo info in agenzia


Efficienza energetica:
Classe energetica: G