home page > Annunci immobiliari in Italia > Emilia-Romagna > Parma > San Secondo Parmense > Case e ville a schiera in vendita > Scheda immobile

Case e ville a schiera in vendita a San Secondo Parmense

COMPILA IL MODULO SOTTOSTANTE PER RICEVERE MAGGIORI INFORMAZIONI







Invia la richiesta ad altre agenzie
Accetto il trattamento dei miei dati



Ga&ma immobiliare srl

Via garibaldi 114
43017 San Secondo Parmense (PR)

05211830192

San Secondo Parmense
Prezzo: € 169.000
2
2
101



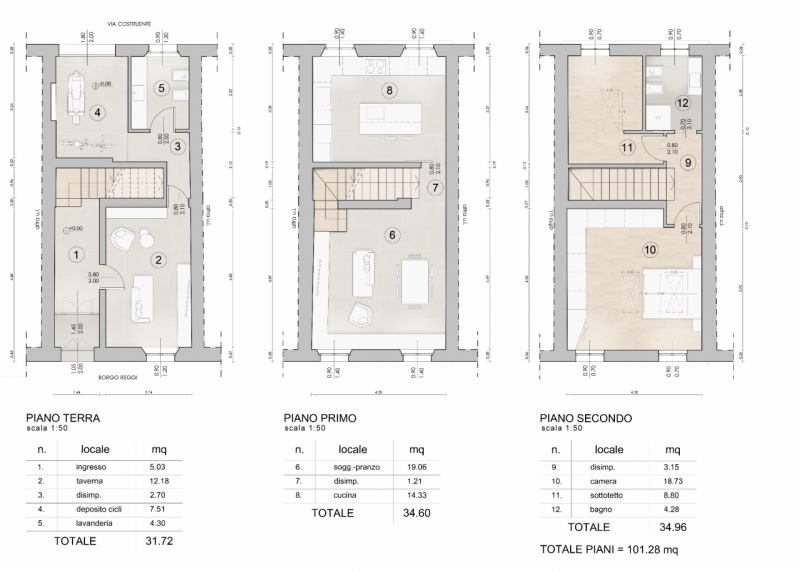
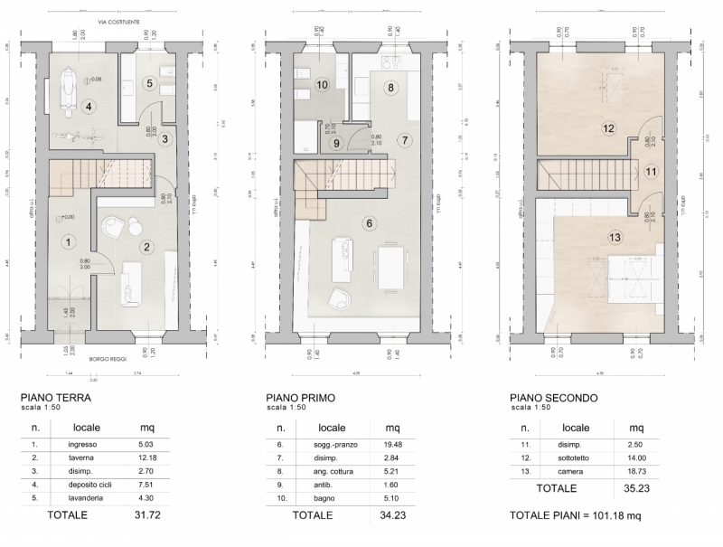
Descrizione:
San secondo p.se: in centro storico, porzione di casa completamente ristrutturata con ingresso indipendente, disposta su tre livelli, cosù composta: ingresso, taverna, bagno/lavanderia e garage per deposito cicli/motocicli al piano terra;cucina, soggiorno e bagno al primo piano;due camere matrimoniali al secondo piano.immobile dotato di riscaldamento a pavimento, caldaia a condensazione, n. 3 predisposizioni per aria condizionata, basculante sezionale motorizzata, porta blindata, zanzariere e videocitofono.possibilità di personalizzare a piacimento finiture, capitolati e disposizioni interne.




Caratteristiche immobile:
Codice inserzione: 1763005878
Rif. Annuncio: 4609485
Provincia: Parma
Comune: San Secondo Parmense
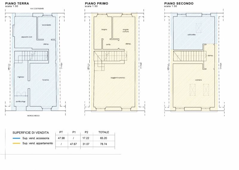
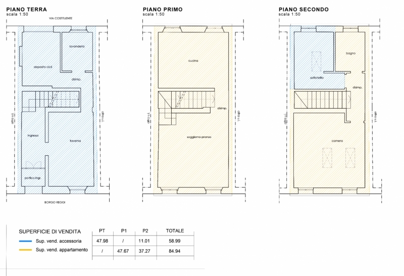
Superficie (Mq) : 101 Mq.
Tipo immobile: Case e ville a schiera
Stato immobile: ristrutturato
Anno costruzione/ristrutturazione: 2025
Camere: 2
Garage: Singolo
Bagni: 2 + lavanderia

Costi:
Prezzo € 169.000


Efficienza energetica:
Riscaldamento: autonomo a pavimento