home page > Annunci immobiliari in Italia > Emilia-Romagna > Piacenza > Pontenure > Case e ville a schiera in vendita > Scheda immobile

Case e ville a schiera in vendita a Pontenure

COMPILA IL MODULO SOTTOSTANTE PER RICEVERE MAGGIORI INFORMAZIONI







Invia la richiesta ad altre agenzie
Accetto il trattamento dei miei dati



Abilio s.p.a.

Via galileo galilei 6
48018 Faenza (RA)

0289741561    0546046748    0546046747    Riferimenti: Abilio S.p.A.

Pontenure
Prezzo: € 14.176
1
1
153



Descrizione:
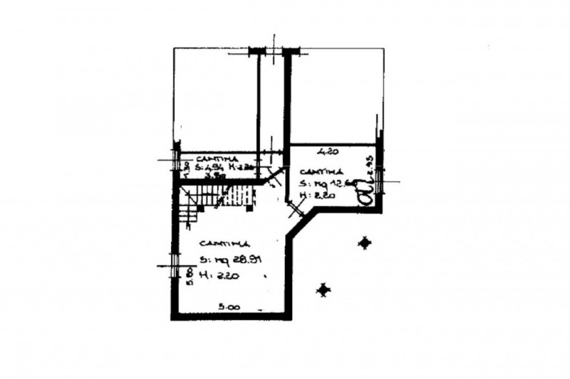
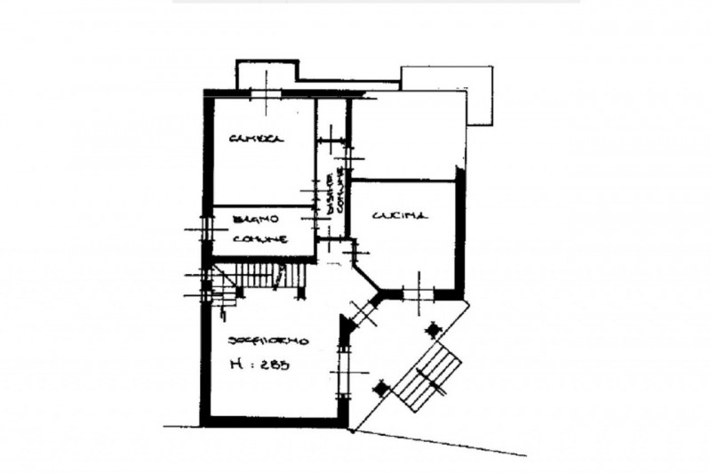
Quest'immobile viene venduto tramite asta online.vendesi (quota 1/6) a pontenure, via emilia parmense ovest abitazione da cielo a terra con annesse canti-na al piano interrato, un immobile a destinazione ufficio al piano terreno, una autorimessa ed un magazzino al piano interrato. L'abitazione ha l'ingresso indipendente, al quale vi si accede dal cortile comune. Internamente si compone da ingresso e soggiorno, disimpegno, cucina, bagno, ripostiglio camera da letto, oltre ad un altro locale utilizzato come camera da letto ma che ufficialmente risulta essere l'immobile censito come ufficio sub.11. Riscaldamento autonomo con caldaia. Il piano interrato è costituito da n. 3 locali ad uso cantina ac-cessibili direttamente dall'interno dell'abitazione a completare la sagoma dell'immobile al piano interrato si tro-vano una autorimessa ed un magazzino dotati di impianto elettrico.si segnala che la stanza con destinazione ufficio del sub. 11 collegato all'abitazione sub. 8 in realtà è utilizzata come camera da letto e non come ufficio.superficie lorda: circa 153 mqquota 1/6 di piena proprietà:a/2 (cf): foglio 18 particella 1535 subalterno 8a/10 (cf): foglio 18 particella 1535 subalterno 11c/2 (cf): foglio 18 particella 1535 subalterno 12c/6 (cf): foglio 18 particella 1535 subalterno 13per maggiori dettagli si riporta alla perizia tecnica allegata. Immobile identificato come 'lotto m-n-o-p'immobile occupato. Beni mobili non oggetto della presente vendita.quimmo.it: iniziativa tech del gruppo illimity specializzata nell'intermediazione digitale di beni immobili provenienti da tribunali, nuovi sviluppi immobiliari, financial institutions e libero mercato.da oltre 10 anni quimmo.it è il portale specializzato nella compravendita di immobili tramite asta giudiziaria. Il portale è infatti iscritto nel registro gestori della vendita telematica e nell'elenco dei siti web autorizzati allo svolgimento della pubblicità legale. Con quimmo puoi scegliere tra migliaia di immobili di ogni tipo e partecipare alle aste online per acquistare la soluzione più adatta alle tue esigenze.affidati all'esperienza decennale dei nostri esperti e richiedi l'assistenza gratuita per la presentazione e compilazione dell'offerta.contattaci subito.




Caratteristiche immobile:
Codice inserzione: 1760928815
Rif. Annuncio: 13130
Provincia: Piacenza
Comune: Pontenure
Superficie (Mq) : 153 Mq.
Tipo immobile: Case e ville a schiera
Stato immobile: usato
Camere: 1
Tipologia giardino : Condominiale
Bagni: 1

Costi:
Prezzo € 14.176


Efficienza energetica: